大岡山駅 賃貸管理物件・デュークス大岡山 - 東急沿線の賃貸・不動産ならバレッグス - ブログ
お電話のお問い合わせ
お電話のお問い合わせ
会員登録済みのお客様
大岡山駅 賃貸管理物件・デュークス大岡山
blog articles
2023/05/01 -
大岡山支店

#
デュークス 大岡山 . デュークス大岡山 . 大岡山 賃貸 管理 . 大岡山駅 賃貸 管理 . 洗足 賃貸 管理 . 洗足駅 賃貸 管理 .

大岡山駅 賃貸管理物件・デュークス大岡山【公式】

2023.09.19更新

この画像はバレッグス賃貸管理物件「大岡山駅  賃貸管理物件・デュークス大岡山【公式】」のヘッダー画像です

今回ご紹介する物件は「デュークス大岡山」当社バレッグスの管理物件です。

 

東工大の最寄り駅である大岡山駅まで徒歩9分。目黒区でも有数の高級住宅街である洗足駅まで12分という抜群のロケーションです。

 

デュークス大岡山は外観はコンクリート打ちっぱなしのオシャレなデザインですが、内装は明るくシンプルなデザインで、とても暮らしやすい仕様です。

 

「女性限定マンション」としてニーズの高い独立洗面台やマイコン追い焚き機能付きバスルーム、当然オートロックも完備。デザインと暮らしやすさを両立させたハイグレードマンションです。

物件概要 デュークス大岡山
所在地 東京都目黒区南3-12-20
構造規模 RC造4階建 完成日 2017年1月
現況 空室状況を確認 入居可能日 入居可能時期を確認
礼金 1ケ月 敷金 1ケ月
契約期間 定期借家2年 再契約料 新賃料の1か月分
駐車場 ペット・楽器 不可
駐輪場 有(無料) バイク置場
オートロック・宅配ボックス・IHシステムキッチン2口
バストイレ別・温水洗浄便座・独立洗面台・エアコン
マイコン追い焚き機能付きバス・浴室乾燥機・室内洗濯機置場
フリーWi-Fi・女性専用マンション
敷金礼金0(1年未満の解約は違約金として賃料1ヶ月)
号室 間取 面積 参考賃料 管理費 お問合せ
201 1K 22.19 90,000~92,000 5,000 空室状況
202 1K 22.93 90,000~92,000 5,000 空室状況
301 1K 22.19 90,000~92,000 5,000 空室状況
302 1K 22.93 90,000~92,000 5,000 空室状況
401 1K 22.19 90,000~92,000 5,000 空室状況
402 1K 22.93 90,000~92,000 5,000 空室状況

 

(1)HPよりお問い合わせ

デュークス大岡山のご入居を検討されている方は2.デュークス大岡山の参考賃料の空室状況またはお問合せボタンよりご連絡ください。

(2)担当スタッフより内見日時調整のご連絡をします

担当スタッフよりデュークス大岡山を内見する日程調整のご連絡を差し上げます

(3)内見

実際にお部屋をご覧いただきます。内見前のお申し込みをご希望の方は担当スタッフにご相談ください。

 

【関連記事】

内見チェックリスト付!内見のポイントを徹底解説します!

(4)審査・契約

物件をご内見いただき、気に入った場合はお申込み手続きとなります。家主審査の上、法令で定められた物件についての重要事項を宅地建物取引士よりご説明いたします。ご納得の上、契約書への署名捺印をしていただき、契約締結となります。

(5)お引き渡し

退去後まもない場合で、ルームクリーニング前の物件はルームクリーニングが完了した後に、鍵のお引渡し、入居となります。

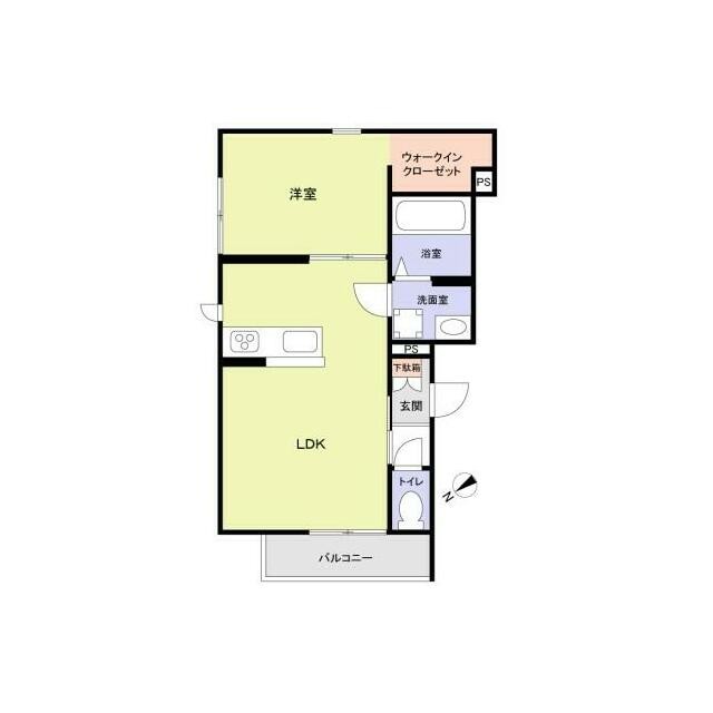
(1)デュークス大岡山201/301/401号室 設備内装

(2)デュークス大岡山202/302/402号室 設備内装

デュークス大岡山は東工大の最寄り駅である大岡山駅から徒歩9分。大岡山商店街をまっすぐ歩いた出口にあります。物件は環七通り沿いにある為、車の騒音等が気になる人も多いと思いますが、居室は全て環七通りの反対側に向いており、なおかつ、環七通り側は内廊下となっている為、騒音は抑えられています。


大岡山駅はパン屋の街としても有名で、食べログ百名店の常連、ショーマッカー (Schomaker)やイトキト (itokito)は帰り道に立ち寄れる場所にあります。ヒンメル (Himmel)は反対側ですが駅からとても近くにあるので普段使いもOKです。

(1)大岡山駅の外食チェーン店・スーパーマーケット

大岡山駅は東工大の最寄り駅ということもあり、気軽に使える外食チェーン店や、スーパーマーケットもたくさんあります。

①大岡山駅のスーパーマーケット

大岡山駅には3件のスーパーマーケットがあります。24時まで営業している東急ストアが駅前にあるのは安心!ヒルママーケットは野菜やお総菜が安くて美味しいと評判のお店です。少し駅から離れますが、イチバンは大岡山の激安スーパーの代表格で、お惣菜の本格インドカレーが200円くらいで買えてめちゃくちゃ美味しいと大人気です。店舗のアイコンにホームページのリンクを貼っています。

この画像は東急ストアのアイコンです。
東急ストア大岡山

東京都目黒区大岡山2-10-1
営業時間 8:00-24:00

この画像はイチバンのアイコンです。
イチバン大岡山店

東京都大田区北千束1-56-2
営業時間 10:00-20:00

この画像はヒルママーケットプレイスのアイコンです
ヒルママーケットプレイス大岡山店

東京都大田区北千束3-26-1
営業時間 9:30-21:00 日祝9:00OPEN

②大岡山駅の外食チェーン店

マクドナルドとサイゼリア、日高屋と王将が揃う街は東急沿線では大岡山のみ!
しかもすべて駅前に揃っているのはかなり使い勝手がいいですね!店舗のアイコンにホームページのリンクを貼っています。

この画像はマクドナルドのアイコンです。
マクドナルド大岡山店

東京都大田区北千束3-28-13

この画像はCoCo壱番屋のアイコンです。
CoCo壱番屋東急大岡山駅前店

東京都大田区北千束1-40-1

この画像は日高屋のアイコンです。
日高屋大岡山店

東京都大田区北千束1-44-1

この画像はエクセルシオールカフェのアイコンです
エクセルシオールカフェ大岡山駅前店

東京都目黒区大岡山2-12-1

この画像はサイゼリヤのアイコンです。
サイゼリヤ大岡山駅前店

東京都大田区北千束3-26-12

この画像はガストのアイコンです。
ガスト大岡山駅前店

東京都大田区北千束1-44-1

この画像は松屋のアイコンです。
松屋大岡山店

京都大田区北千束1-40-1

この画像は餃子の王将のアイコンです。
餃子の王将大岡山店

東京都大田区北千束1-42-2

この画像はドトールコーヒーショップのアイコンです。
ドトールコーヒーショップ大岡山店

東京都大田区北千束1-51-6

(2)目黒区南3丁目の治安

南3丁目は、大岡山商店街のエリアである為、一般的な住宅街と比べると犯罪数は増加する傾向にあります。デュークス大岡山は商店街からは外れ、大通りに面している点を考えると安心して生活できると言えるでしょう。

 

①目黒区南3丁目の治安

世帯数 犯罪数 犯罪数/世帯数
1158 11 0.00950

 

②目黒区南3丁目の犯罪数

総犯罪数 凶悪犯 粗暴犯 侵入窃盗 非侵入窃盗 その他
11 0 1 0 6 4

 

③目黒区南3丁目の世帯数・人口

世帯数 人口 男性 女性
1158 2081 983 1098

 

参照
警視庁区市町村の町丁別、罪種別及び手口別認知件数(2021)
目黒区:町丁別世帯数および人口表 令和3年度(2021)3月1日

関連記事
目黒区の治安を町名別に調べてみました!

(3)パンと学生の街「大岡山駅」

 

デュークス大岡山は2線3駅が利用できる好立地にありますが、生活する上でメインの街となるのはやはり大岡山駅でしょう。

 

大岡山駅は東京工業大学(東工大)の最寄り駅。地元の方と学生でいつも賑わっています。スーパーマーケットや飲食店も豊富にあり、少し高級なお店も、リーズナブルなお店も揃っています。

 

 

 

関連記事

目黒区の治安、町名別に調べてみました!
大岡山駅の住みやすさについて調べてみました!

(4)大岡山駅が誇るパンの名店3選

 

大岡山駅は知る人ぞ知るパンの街。評価の高いパンの名店が3つもあります。地図と合わせてご紹介します!

①ショーマッカー(Schomaker)

ドイツパンの名店ショーマッカー
食べログパンTOKYO百名店2020・2022に選出されているお店です。グルテンフリーで健康的なパンは、程よい酸味と味わいがクセになります。食べ応えもあって本当に美味しい!

 

東京都大田区北千束1-59-10
[火曜~日曜]9:00-18:00

②イトキト (itokito)

サンドイッチで有名なイトキト。
こちらも食べログパンTOKYO百名店に2017・18・19・20・22に選出されている超有名店
フレンチスタイルのサンドイッチはどれもめちゃくちゃ美味しいです。


東京都大田区北千束1-54-10
[木曜~金曜]10:00-20:00

 

この投稿をInstagramで見る

 

Atsushi Yamawaki(@moon.in.june.70s)がシェアした投稿

 

この投稿をInstagramで見る

 

ヒトミ(@hikomassu)がシェアした投稿

③ヒンメル (Himmel)

こちらもドイツパンの名店ヒンメル。こちらも食べログパンTOKYO百名店2020・2022に選出されているお店です。ショーマッカーと比べると総菜パンやサンドイッチなど日本人にも親しみやすいパンもずらり。店内のデザインもとってもかわいいです。あと駅近い。

 

東京都大田区北千束3-28-4
8:00~19:30

(1)大岡山駅から都心へのアクセス

 

大岡山駅は東急目黒線と大井町線の停車駅。目黒線で目黒駅までも8分とアクセスは抜群です。

目黒駅から山手線で品川駅まで18分、渋谷駅も18分です。横浜方面へも、横浜駅まで23分で出ることができます。

 

また目黒線は三田線、南北線が乗り入れているので大手町や永田町方面へもスムーズに出ることができます。三田線利用で大手町駅まで27分、南北線利用で永田町駅まで22分です。



大井町線を利用すれば、大井町駅までわずか9分。自由が丘駅まで3分。二子玉川駅へも11分です。もちろん自由が丘駅から東横線を利用して学芸大学駅まで12分、中目黒駅へも15分、渋谷駅も18分で出ることができます。



東横線は副都心線の乗り入れがありますので、そのまま新宿三丁目駅まで25分、池袋駅迄32分です。



ということで大岡山駅の電車でのアクセスはめちゃくちゃ優秀です。


外部リンク
東急電鉄:大岡山駅のダイヤ

(2)新横浜へ直通!新横浜線の乗り入れが始まる!


東急新横浜線が3月18日に開業したことで、大岡山駅から乗り換えなしで新横浜まで行くことができるようになりました。新横浜線は相鉄線と接続しているので、海老名方面へもそのまま行くことが可能に!関西中部地方が地元という方や、旅行好きの方にはとても便利になりました。

最後に・・・・・・

以上、大岡山駅  賃貸管理物件デュークス大岡山についての記事でした。大岡山商店街を駅までのルートに利用できる抜群のロケーションと、デザイン性と暮らしやすさを両立させた、女性専用デザイナーズマンションということもあり、人気がとても高いデュークス大岡山は人気の物件です。

 

その他にも、このエリアにはおすすめ物件がたくさんあります。大岡山駅の商店街沿いにはバレッグス大岡山支店がございます。地域に詳しい、経験豊富なスタッフがしっかりとサポートいたしますのでお気軽にお問い合わせください!

 

それでは最後までご覧いただきありがとうございます。

バレッグス大岡山支店

〒145-0062
東京都 大田区 北千束1-42-3
TEL:03-3794-1154
目黒線・大井町線大岡山駅徒歩2分

ライター
ライター:足立 宥佑 (株)バレッグス 賃貸営業部(マーケティング担当)2018年に株式会社バレッグスへ入社。不動産賃貸仲介業務とWEBマーケティングに約8年従事しており、業界で培った知識と経験をもとに、「お部屋探しのポイント」「物件選びのコツ」など役立つ情報を発信しています。目黒区在住歴も8年。地域に根ざした視点で、 リアルな情報を心がけています。
住まい選びの参考にしていただけたら幸いです。
この画像はこの記事のライターの写真です
店長のオススメ
大田区南馬込1丁目 【賃貸居住】マンション

馬込駅 徒歩8分

92,000円

1K/20.01m²
品川区東中延1丁目 【賃貸居住】マンション

荏原中延駅 徒歩1分

143,000円

1K/25.20m²
品川区荏原5丁目 【賃貸居住】マンション

西小山駅 徒歩8分

190,000円

1LDK/40.82m²
中央区日本橋箱崎町 【賃貸居住】マンション

水天宮前駅 徒歩2分

95,000円

1K/23.95m²

梅屋敷駅 徒歩10分

114,000円

1DK/25.12m²
世田谷区瀬田4丁目 【賃貸居住】マンション

用賀駅 徒歩9分

105,000円

1R/25.67m²