世田谷区下馬5丁目 【賃貸居住】マンション - 東急沿線の賃貸・不動産ならバレッグス
お電話のお問い合わせ
お電話のお問い合わせ
会員登録済みのお客様
クレイシアIDZ祐天寺II 3階
Room Detail
(外観)
(間取)
(内装)
(キッチン)
(風呂)
(玄関)
(内装)
(内装)
(内装)
(その他建物画像)
祐天寺駅(743m)(周辺)
(外観)
(間取)
(内装)
(キッチン)
(風呂)
(玄関)
(内装)
(内装)
(内装)
(その他建物画像)
祐天寺駅(743m)(周辺)
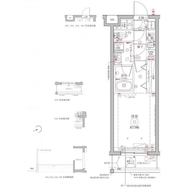
間取り図
物件基本情報2026年4月17日更新
家 賃 14.9万円 間取り 1K
管理費(共益費) 15,000円 面 積 25.52m²
敷 金 1ヶ月 礼 金 1ヶ月
保証金 なし 償 却 なし
周辺の交通
東急東横線 祐天寺駅 徒歩7分
東急東横線 学芸大学駅 徒歩17分
住   所
東京都世田谷区 下馬5丁目
物件種別
マンションタイプ
完成/築年数
2023年08月/ 築2年
入居時期
相談
構   造
鉄筋コン: 地上4階  建て  3階部分
物件番号
673504
物件基本情報2026年4月17日更新
家 賃 14.9万円 間取り 1K
管理費(共益費) 15,000円 面 積 25.52m²
敷 金 1ヶ月 礼 金 1ヶ月
保証金 なし 償 却 なし
周辺の交通
東急東横線 祐天寺駅 徒歩7分
東急東横線 学芸大学駅 徒歩17分
住   所
東京都世田谷区 下馬5丁目
物件種別
マンションタイプ
完成/築年数
2023年08月/ 築2年
入居時期
相談
構   造
鉄筋コン: 地上4階  建て  3階部分
物件番号
673504

間取り図

間取り図
詳細情報
  • オートロック
  • バス・トイレ別
  • 室内洗濯機置き場
  • 独立洗面台
  • フローリング
  • ガスコンロ
  • 二口コンロ
  • システムキッチン
  • 浴室乾燥機
  • 温水洗浄便座
  • エアコン
  • インターネット利用料無料
  • 防犯カメラ
  • エレベータ
  • 宅配ボックス
  • バルコニー
  • タイル貼り
  • 2階以上
取り扱い店
祐天寺店
取引形態
仲介
間取り詳細
K2.50帖 洋室7.00帖        
備   考

普通借家契約 2年間

会員限定の未公開物件を多数公開中!

条件の近い物件