世田谷区下馬6丁目 【賃貸居住】マンション - 東急沿線の賃貸・不動産ならバレッグス
お電話のお問い合わせ
お電話のお問い合わせ
会員登録済みのお客様
Bark Lane 学芸大学 4階
Room Detail
(外観)
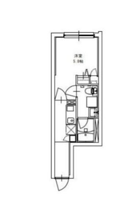
(間取)
※同仕様写真含む(キッチン)
(居間)
(風呂)
※同仕様写真含む(玄関)
※同仕様写真含む(内装)
※同仕様写真含む(内装)
※同仕様写真含む(内装)
(その他建物画像)
学芸大学駅(498m)(周辺)
(外観)
(間取)
※同仕様写真含む(キッチン)
(居間)
(風呂)
※同仕様写真含む(玄関)
※同仕様写真含む(内装)
※同仕様写真含む(内装)
※同仕様写真含む(内装)
(その他建物画像)
学芸大学駅(498m)(周辺)
間取り図
物件基本情報2026年1月20日更新
家 賃 13.1万円 間取り 1K
管理費(共益費) 8,000円 面 積 21.73m²
敷 金 1ヶ月 礼 金 1ヶ月
保証金 なし 償 却 なし
周辺の交通
東急東横線 学芸大学駅 徒歩6分
東急東横線 都立大学駅 徒歩23分
住   所
東京都世田谷区 下馬6丁目
物件種別
マンションタイプ
完成/築年数
2025年11月/ 新築
入居時期
相談
構   造
鉄筋コン: 地上5階  建て  4階部分
物件番号
659094
物件基本情報2026年1月20日更新
家 賃 13.1万円 間取り 1K
管理費(共益費) 8,000円 面 積 21.73m²
敷 金 1ヶ月 礼 金 1ヶ月
保証金 なし 償 却 なし
周辺の交通
東急東横線 学芸大学駅 徒歩6分
東急東横線 都立大学駅 徒歩23分
住   所
東京都世田谷区 下馬6丁目
物件種別
マンションタイプ
完成/築年数
2025年11月/ 新築
入居時期
相談
構   造
鉄筋コン: 地上5階  建て  4階部分
物件番号
659094

間取り図

間取り図
詳細情報
  • オートロック
  • バス・トイレ別
  • 室内洗濯機置き場
  • 独立洗面台
  • フローリング
  • 角部屋
  • IHコンロ
  • 二口コンロ
  • 浴室乾燥機
  • 温水洗浄便座
  • CSアンテナ
  • BSアンテナ
  • インターネット利用料無料
  • TVドアホン
  • 防犯カメラ
  • 都市ガス
  • 宅配ボックス
  • 2階以上
取り扱い店
学芸大学店
取引形態
仲介
間取り詳細
洋室5.80帖         
備   考

普通借家契約 2年間

会員限定の未公開物件を多数公開中!

条件の近い物件