世田谷区奥沢4丁目 【賃貸居住】一戸建 - 東急沿線の賃貸・不動産ならバレッグス
お電話のお問い合わせ
お電話のお問い合わせ
会員登録済みのお客様
世田谷区奥沢4丁目戸建
new
Room Detail
外観(外観)
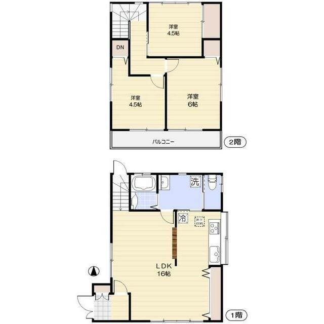
間取図(間取)
居室
キッチン(キッチン)
洋室(居間)
バス(風呂)
玄関(玄関)
バルコニー
洗面所(内装)
トイレ(内装)
セキュリティ
収納(内装)
設備 洗濯機置場
外観(その他建物画像)
景色
奥沢駅(402m)(周辺)
共用設備
内装
外観(外観)
間取図(間取)
居室
キッチン(キッチン)
洋室(居間)
バス(風呂)
玄関(玄関)
バルコニー
洗面所(内装)
トイレ(内装)
セキュリティ
収納(内装)
設備 洗濯機置場
外観(その他建物画像)
景色
奥沢駅(402m)(周辺)
共用設備
内装
間取り図
物件基本情報2026年4月24日更新
家 賃 25万円 間取り 3LDK
管理費(共益費) なし 面 積 90.18m²
敷 金 1ヶ月 礼 金 1ヶ月
保証金 なし 償 却 なし
周辺の交通
東急目黒線 奥沢駅 徒歩5分
東急東横線 自由が丘駅 徒歩9分
住   所
東京都世田谷区 奥沢4丁目
物件種別
一戸建タイプ
完成/築年数
1963年10月/ 築62年
入居時期
期日指定: 2026年05月 下旬
構   造
木造: 地上2階  建て  階部分
物件番号
681143
物件基本情報2026年4月24日更新
家 賃 25万円 間取り 3LDK
管理費(共益費) なし 面 積 90.18m²
敷 金 1ヶ月 礼 金 1ヶ月
保証金 なし 償 却 なし
周辺の交通
東急目黒線 奥沢駅 徒歩5分
東急東横線 自由が丘駅 徒歩9分
住   所
東京都世田谷区 奥沢4丁目
物件種別
一戸建タイプ
完成/築年数
1963年10月/ 築62年
入居時期
期日指定: 2026年05月 下旬
構   造
木造: 地上2階  建て  階部分
物件番号
681143

間取り図

間取り図
詳細情報
  • オートロック
  • バス・トイレ別
  • 室内洗濯機置き場
  • 独立洗面台
  • フローリング
  • 楽器相談可
  • 2人入居可
  • 角部屋
  • ガスコンロ
  • 三口コンロ
  • システムキッチン
  • 食器洗い乾燥機
  • 追い焚き
  • 洗髪洗面化粧台
  • 温水洗浄便座
  • エアコン
  • 床下収納
  • TVドアホン
  • 都市ガス
  • 駐輪場
  • バルコニー
取り扱い店
自由が丘店
取引形態
仲介
間取り詳細
         
備   考

定期借家契約 1年間 

会員限定の未公開物件を多数公開中!

条件の近い物件