世田谷区尾山台3丁目 【賃貸居住】マンション - 東急沿線の賃貸・不動産ならバレッグス
お電話のお問い合わせ
お電話のお問い合わせ
会員登録済みのお客様
オープンレジデンシア尾山台 4階
new
Room Detail
(外観)
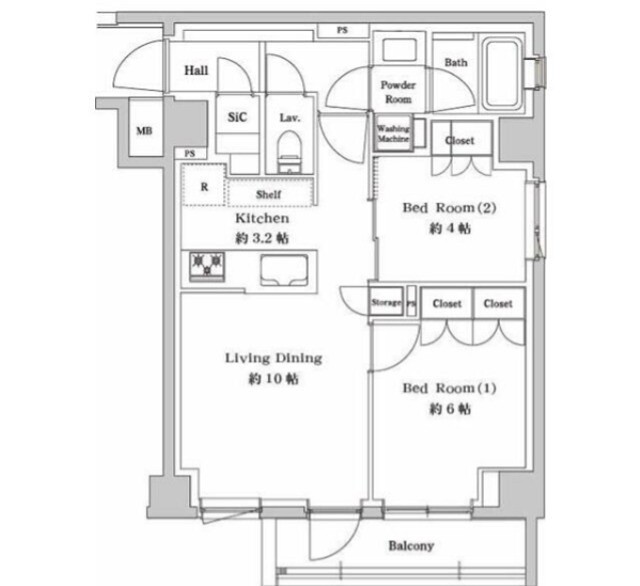
(間取)
三面鏡独立洗面台(内装)
対面式キッチン(キッチン)
(居間)
追い焚き・浴室乾燥機付き(風呂)
6帖洋室
(玄関)
温水洗浄便座(内装)
シューズインクローゼット(内装)
4帖洋室
宅配ボックス
駐輪場
尾山台駅(367m)(周辺)
(外観)
(間取)
三面鏡独立洗面台(内装)
対面式キッチン(キッチン)
(居間)
追い焚き・浴室乾燥機付き(風呂)
6帖洋室
(玄関)
温水洗浄便座(内装)
シューズインクローゼット(内装)
4帖洋室
宅配ボックス
駐輪場
尾山台駅(367m)(周辺)
間取り図
物件基本情報2026年2月25日更新
家 賃 24.5万円 間取り 2LDK
管理費(共益費) 20,000円 面 積 54.29m²
敷 金 1ヶ月 礼 金 1ヶ月
保証金 なし 償 却 なし
周辺の交通
東急大井町線 尾山台駅 徒歩4分
東急東横線 自由が丘駅 徒歩24分
住   所
東京都世田谷区 尾山台3丁目
物件種別
マンションタイプ
完成/築年数
2024年08月/ 築1年
入居時期
相談
構   造
鉄筋コン: 地上6階  建て  4階部分
物件番号
672944
物件基本情報2026年2月25日更新
家 賃 24.5万円 間取り 2LDK
管理費(共益費) 20,000円 面 積 54.29m²
敷 金 1ヶ月 礼 金 1ヶ月
保証金 なし 償 却 なし
周辺の交通
東急大井町線 尾山台駅 徒歩4分
東急東横線 自由が丘駅 徒歩24分
住   所
東京都世田谷区 尾山台3丁目
物件種別
マンションタイプ
完成/築年数
2024年08月/ 築1年
入居時期
相談
構   造
鉄筋コン: 地上6階  建て  4階部分
物件番号
672944

間取り図

間取り図
詳細情報
  • オートロック
  • バス・トイレ別
  • 室内洗濯機置き場
  • 独立洗面台
  • フローリング
  • 楽器相談可
  • 分譲賃貸
  • ガスコンロ
  • 三口コンロ
  • システムキッチン
  • カウンターキッチン
  • 食器洗い乾燥機
  • 追い焚き
  • 浴室乾燥機
  • 温水洗浄便座
  • CATV
  • インターネット利用料無料
  • TVドアホン
  • 防犯カメラ
  • 都市ガス
  • 宅配ボックス
  • 駐輪場
  • バルコニー
  • 2階以上
取り扱い店
桜新町店
取引形態
仲介
間取り詳細
LDK13.20帖 洋室4.00帖 洋室6.00帖       
備   考

普通借家契約 2年間

会員限定の未公開物件を多数公開中!

条件の近い物件