世田谷区若林4丁目 【賃貸居住】マンション - 東急沿線の賃貸・不動産ならバレッグス
お電話のお問い合わせ
お電話のお問い合わせ
会員登録済みのお客様
ガリシアレジデンス松陰神社 6階
new
Room Detail
(外観)
(間取)
(内装)
(キッチン)
(居間)
(風呂)
(玄関)
(内装)
(内装)
松陰神社前駅(119m)(周辺)
(外観)
(間取)
(内装)
(キッチン)
(居間)
(風呂)
(玄関)
(内装)
(内装)
松陰神社前駅(119m)(周辺)
間取り図
物件基本情報2026年4月19日更新
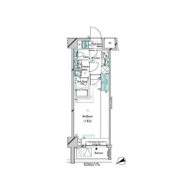
家 賃 11.65万円 間取り 1K
管理費(共益費) 13,000円 面 積 25.95m²
敷 金 1ヶ月 礼 金 1ヶ月
保証金 なし 償 却 なし
周辺の交通
東急世田谷線 松陰神社前駅 徒歩2分
東急世田谷線 世田谷駅 徒歩6分
住   所
東京都世田谷区 若林4丁目
物件種別
マンションタイプ
完成/築年数
2024年08月/ 築1年
入居時期
相談
構   造
鉄筋コン: 地上7階  建て  6階部分
物件番号
680294
物件基本情報2026年4月19日更新
家 賃 11.65万円 間取り 1K
管理費(共益費) 13,000円 面 積 25.95m²
敷 金 1ヶ月 礼 金 1ヶ月
保証金 なし 償 却 なし
周辺の交通
東急世田谷線 松陰神社前駅 徒歩2分
東急世田谷線 世田谷駅 徒歩6分
住   所
東京都世田谷区 若林4丁目
物件種別
マンションタイプ
完成/築年数
2024年08月/ 築1年
入居時期
相談
構   造
鉄筋コン: 地上7階  建て  6階部分
物件番号
680294

間取り図

間取り図
詳細情報
  • オートロック
  • バス・トイレ別
  • 室内洗濯機置き場
  • 独立洗面台
  • フローリング
  • 2人入居可
  • 分譲賃貸
  • ガスコンロ
  • 二口コンロ
  • システムキッチン
  • ごみ出し24時間OK
  • 浴室乾燥機
  • 温水洗浄便座
  • エアコン
  • CSアンテナ
  • BSアンテナ
  • インターネット利用料無料
  • TVドアホン
  • 防犯カメラ
  • 都市ガス
  • エレベータ
  • 宅配ボックス
  • バルコニー
  • タイル貼り
  • デザイナーズ
  • 2階以上
取り扱い店
桜新町店
取引形態
仲介
間取り詳細
洋室8.50帖         
備   考

普通借家契約 2年間

会員限定の未公開物件を多数公開中!

条件の近い物件