世田谷区野沢3丁目 【賃貸居住】マンション - 東急沿線の賃貸・不動産ならバレッグス
お電話のお問い合わせ
お電話のお問い合わせ
会員登録済みのお客様
ベルグレードK 6階
new
Room Detail
(外観)
(間取)
(その他建物画像)
(キッチン)
(居間)
(風呂)
(玄関)
(内装)
(内装)
(内装)
駒沢大学駅(1200m)(周辺)
(外観)
(間取)
(その他建物画像)
(キッチン)
(居間)
(風呂)
(玄関)
(内装)
(内装)
(内装)
駒沢大学駅(1200m)(周辺)
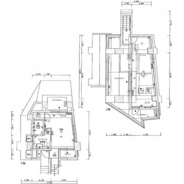
間取り図
物件基本情報2025年11月3日更新
家 賃 14.5万円 間取り 1LDK
管理費(共益費) 15,000円 面 積 51.47m²
敷 金 0.5ヶ月 礼 金 1ヶ月
保証金 なし 償 却
周辺の交通
東急田園都市線 駒沢大学駅 徒歩15分
東急東横線 学芸大学駅 徒歩16分
住   所
東京都世田谷区 野沢3丁目
物件種別
マンションタイプ
完成/築年数
2006年01月/ 築19年
入居時期
相談
構   造
鉄筋コン: 地上6階  建て  6階部分
物件番号
658681
物件基本情報2025年11月3日更新
家 賃 14.5万円 間取り 1LDK
管理費(共益費) 15,000円 面 積 51.47m²
敷 金 0.5ヶ月 礼 金 1ヶ月
保証金 なし 償 却
周辺の交通
東急田園都市線 駒沢大学駅 徒歩15分
東急東横線 学芸大学駅 徒歩16分
住   所
東京都世田谷区 野沢3丁目
物件種別
マンションタイプ
完成/築年数
2006年01月/ 築19年
入居時期
相談
構   造
鉄筋コン: 地上6階  建て  6階部分
物件番号
658681

間取り図

間取り図
詳細情報
  • オートロック
  • バス・トイレ別
  • 室内洗濯機置き場
  • 独立洗面台
  • フローリング
  • 2人入居可
  • 角部屋
  • 分譲賃貸
  • ガスコンロ
  • 二口コンロ
  • システムキッチン
  • カウンターキッチン
  • 洗髪洗面化粧台
  • 浴室乾燥機
  • 温水洗浄便座
  • TVドアホン
  • 防犯カメラ
  • 都市ガス
  • 宅配ボックス
  • バルコニー
  • 2階以上
取り扱い店
三軒茶屋店
取引形態
一般
間取り詳細
         
備   考

普通借家契約 2年間

会員限定の未公開物件を多数公開中!

条件の近い物件