世田谷区駒沢5丁目 【賃貸居住】マンション - 東急沿線の賃貸・不動産ならバレッグス
お電話のお問い合わせ
お電話のお問い合わせ
会員登録済みのお客様
エルファーロ駒沢公園Ⅰ 3階
new
Room Detail
(外観)
(間取)
※同仕様写真含む(居間)
※同仕様写真含む(キッチン)
※同仕様写真含む(風呂)
※同仕様写真含む(内装)
※同仕様写真含む(内装)
※同仕様写真含む
※同仕様写真含む(内装)
※同仕様写真含む(玄関)
※同仕様写真含む
※同仕様写真含む
※同仕様写真含む
(その他建物画像)
駒沢大学駅(周辺)
【世田谷区立駒沢小学校】駒沢大学駅から(周辺)
【世田谷区警察署 上馬交番】駒沢大学駅から(周辺)
【駒沢オリンピック公園】駒沢大学駅から(周辺)
【世田谷上馬郵便局】駒沢大学駅から(周辺)
(外観)
(間取)
※同仕様写真含む(居間)
※同仕様写真含む(キッチン)
※同仕様写真含む(風呂)
※同仕様写真含む(内装)
※同仕様写真含む(内装)
※同仕様写真含む
※同仕様写真含む(内装)
※同仕様写真含む(玄関)
※同仕様写真含む
※同仕様写真含む
※同仕様写真含む
(その他建物画像)
駒沢大学駅(周辺)
【世田谷区立駒沢小学校】駒沢大学駅から(周辺)
【世田谷区警察署 上馬交番】駒沢大学駅から(周辺)
【駒沢オリンピック公園】駒沢大学駅から(周辺)
【世田谷上馬郵便局】駒沢大学駅から(周辺)
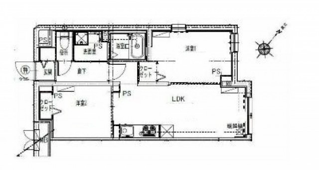
間取り図
物件基本情報2025年10月13日更新
家 賃 22.6万円 間取り 2LDK
管理費(共益費) 15,000円 面 積 49.01m²
敷 金 なし 礼 金 なし
保証金 なし 償 却 なし
周辺の交通
東急田園都市線 駒沢大学駅 徒歩13分
東急田園都市線 桜新町駅 徒歩22分
東急大井町線 等々力駅 徒歩25分
住   所
東京都世田谷区 駒沢5丁目
物件種別
マンションタイプ
完成/築年数
2023年09月/ 築2年
入居時期
相談
構   造
鉄筋コン: 地上5階  建て  3階部分
物件番号
649640
物件基本情報2025年10月13日更新
家 賃 22.6万円 間取り 2LDK
管理費(共益費) 15,000円 面 積 49.01m²
敷 金 なし 礼 金 なし
保証金 なし 償 却 なし
周辺の交通
東急田園都市線 駒沢大学駅 徒歩13分
東急田園都市線 桜新町駅 徒歩22分
東急大井町線 等々力駅 徒歩25分
住   所
東京都世田谷区 駒沢5丁目
物件種別
マンションタイプ
完成/築年数
2023年09月/ 築2年
入居時期
相談
構   造
鉄筋コン: 地上5階  建て  3階部分
物件番号
649640

間取り図

間取り図
詳細情報
  • オートロック
  • バス・トイレ別
  • 室内洗濯機置き場
  • 独立洗面台
  • フローリング
  • 事務所不可
  • ペット可能
  • 保証人不要
  • 敷金礼金0
  • ガスコンロ
  • 三口コンロ
  • システムキッチン
  • 追い焚き
  • 浴室乾燥機
  • 温水洗浄便座
  • エアコン
  • CATV
  • CSアンテナ
  • BSアンテナ
  • 高速インターネット
  • インターネット利用料無料
  • TVドアホン
  • 防犯カメラ
  • 都市ガス
  • 宅配ボックス
  • デザイナーズ
  • 2階以上
取り扱い店
三軒茶屋店
取引形態
仲介
間取り詳細
         
備   考

普通借家契約 2年間
詳細はお気軽にお問合せください。※画像は同仕様写真等を含む場合あり、その他掲載情報についても現況優先

会員限定の未公開物件を多数公開中!

条件の近い物件