中央区佃1丁目 【賃貸居住】マンション - 東急沿線の賃貸・不動産ならバレッグス
お電話のお問い合わせ
お電話のお問い合わせ
会員登録済みのお客様
リバーポイントタワー 13階
Room Detail
(外観)
(外観)
(その他建物画像)
(その他建物画像)
(その他建物画像)
(外観)
(外観)
(間取)
※写真は同タイプ住戸です。(風呂)
※写真は同タイプ住戸です。(キッチン)
※写真は同タイプ住戸です。(居間)
(外観)
(外観)
(その他建物画像)
(その他建物画像)
(その他建物画像)
(外観)
(外観)
(間取)
※写真は同タイプ住戸です。(風呂)
※写真は同タイプ住戸です。(キッチン)
※写真は同タイプ住戸です。(居間)
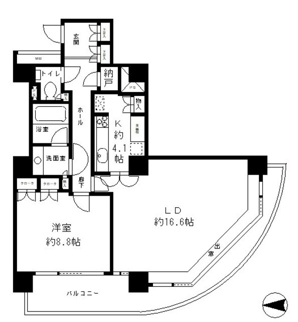
間取り図
物件基本情報2026年4月27日更新
家 賃 38.3万円 間取り 1LDK
管理費(共益費) なし 面 積 72.69m²
敷 金 1ヶ月 礼 金 1ヶ月
保証金 なし 償 却 なし
周辺の交通
東京メトロ有楽町線 月島駅 徒歩7分
JR京葉線 越中島駅 徒歩14分
東京メトロ日比谷線 八丁堀駅 徒歩12分
住   所
東京都中央区 佃1丁目
物件種別
マンションタイプ
完成/築年数
1989年04月/ 築37年
入居時期
即時
構   造
鉄筋鉄骨: 地上40階  建て  13階部分
物件番号
671535
物件基本情報2026年4月27日更新
家 賃 38.3万円 間取り 1LDK
管理費(共益費) なし 面 積 72.69m²
敷 金 1ヶ月 礼 金 1ヶ月
保証金 なし 償 却 なし
周辺の交通
東京メトロ有楽町線 月島駅 徒歩7分
JR京葉線 越中島駅 徒歩14分
東京メトロ日比谷線 八丁堀駅 徒歩12分
住   所
東京都中央区 佃1丁目
物件種別
マンションタイプ
完成/築年数
1989年04月/ 築37年
入居時期
即時
構   造
鉄筋鉄骨: 地上40階  建て  13階部分
物件番号
671535

間取り図

間取り図
詳細情報
  • オートロック
  • バス・トイレ別
  • 室内洗濯機置き場
  • 独立洗面台
  • フローリング
  • 楽器相談可
  • 事務所不可
  • IHコンロ
  • システムキッチン
  • 追い焚き
  • 浴室乾燥機
  • エアコン
  • CSアンテナ
  • BSアンテナ
  • 高速インターネット
  • エレベータ
  • 宅配ボックス
  • バルコニー
  • 2階以上
  • フロントサービス
取り扱い店
学芸大学店
取引形態
仲介
間取り詳細
LDK0.00帖         
備   考

普通借家契約 24ヶ月間
【めやす賃料】398959円/【P・BC問合せ】ピアウエストハウス03-3536-2700・1年未満

会員限定の未公開物件を多数公開中!

条件の近い物件