

代々木駅 徒歩3分
412,000円
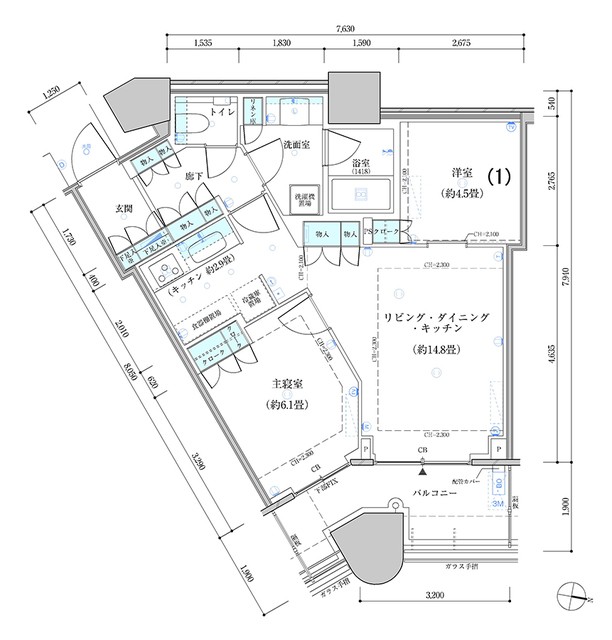
2LDK/64.04m²
家 賃 | 40.9万円 | 間取り | 2LDK |
---|---|---|---|
管理費(共益費) | なし | 面 積 | 60.25m² |
敷 金 | 1ヶ月 | 礼 金 | 2ヶ月 |
保証金 | なし | 償 却 | なし |
家 賃 | 40.9万円 | 間取り | 2LDK |
---|---|---|---|
管理費(共益費) | なし | 面 積 | 60.25m² |
敷 金 | 1ヶ月 | 礼 金 | 2ヶ月 |
保証金 | なし | 償 却 | なし |
定期借家契約 定借2年(再契約相談可)■駐輪平置月550円■1年未ペナ有■10月中契約開始必須(変更可能性有)■A
会員限定の未公開物件を多数公開中!