中野区中野4丁目 【賃貸居住】マンション - 東急沿線の賃貸・不動産ならバレッグス
お電話のお問い合わせ
お電話のお問い合わせ
会員登録済みのお客様
パークシティ中野 ザ タワー ブリーズ 7階
new
Room Detail
(外観)
(その他建物画像)
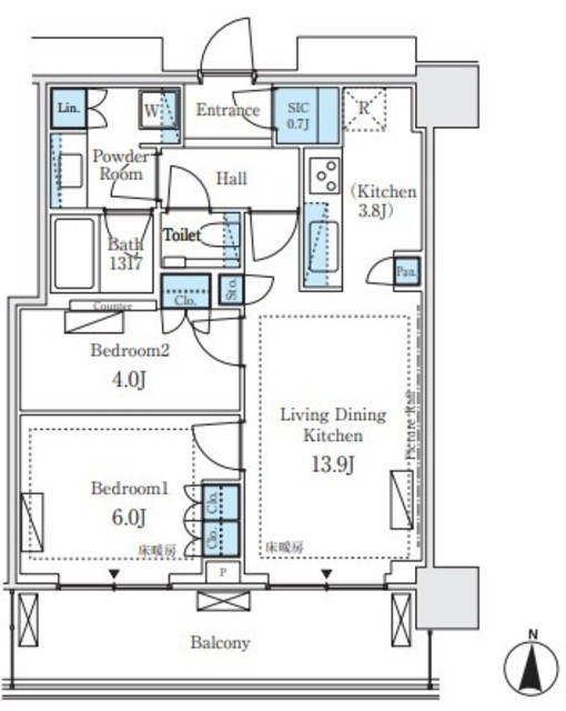
(間取)
(外観)
(その他建物画像)
(間取)
間取り図
物件基本情報2026年4月1日更新
家 賃 32.6万円 間取り 2LDK
管理費(共益費) 20,000円 面 積 55.84m²
敷 金 1ヶ月 礼 金 1ヶ月
保証金 なし 償 却 なし
周辺の交通
徒歩8分
東京メトロ東西線 中野駅 徒歩8分
住   所
東京都中野区 中野4丁目
物件種別
マンションタイプ
完成/築年数
2025年10月/ 新築
入居時期
期日指定: 2026年05月 上旬
構   造
鉄筋コン: 地上20階  建て  7階部分
物件番号
677681
物件基本情報2026年4月1日更新
家 賃 32.6万円 間取り 2LDK
管理費(共益費) 20,000円 面 積 55.84m²
敷 金 1ヶ月 礼 金 1ヶ月
保証金 なし 償 却 なし
周辺の交通
徒歩8分
東京メトロ東西線 中野駅 徒歩8分
住   所
東京都中野区 中野4丁目
物件種別
マンションタイプ
完成/築年数
2025年10月/ 新築
入居時期
期日指定: 2026年05月 上旬
構   造
鉄筋コン: 地上20階  建て  7階部分
物件番号
677681

間取り図

間取り図
詳細情報
  • オートロック
  • バス・トイレ別
  • 室内洗濯機置き場
  • 独立洗面台
  • フローリング
  • 事務所不可
  • 分譲賃貸
  • システムキッチン
  • エレベータ
  • 宅配ボックス
  • バイク置き場
  • バルコニー
  • 2階以上
  • 免震構造
取り扱い店
学芸大学店
取引形態
仲介
間取り詳細
LDK0.00帖         
備   考

普通借家契約 24ヶ月間
【めやす賃料】352792円/ピアノ相談可 管理:調査待ち■定借2年(再契約相談可)■法人礼金2ヶ月

会員限定の未公開物件を多数公開中!

条件の近い物件