

勝どき駅 徒歩3分
251,000円
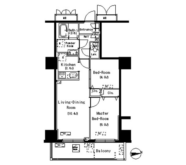
2LDK/61.92m²
| 家 賃 | 25.1万円 | 間取り | 2LDK |
|---|---|---|---|
| 管理費(共益費) | 10,000円 | 面 積 | 50.62m² |
| 敷 金 | 1ヶ月 | 礼 金 | 1ヶ月 |
| 保証金 | なし | 償 却 | なし |
| 家 賃 | 25.1万円 | 間取り | 2LDK |
|---|---|---|---|
| 管理費(共益費) | 10,000円 | 面 積 | 50.62m² |
| 敷 金 | 1ヶ月 | 礼 金 | 1ヶ月 |
| 保証金 | なし | 償 却 | なし |
普通借家契約 24ヶ月間
【めやす賃料】271459円/保証会社未加入の場合敷金+1ヶ月/小型犬・猫計2匹迄飼育の場合敷金+1
会員限定の未公開物件を多数公開中!
