台東区元浅草1丁目 【賃貸居住】マンション - 東急沿線の賃貸・不動産ならバレッグス
お電話のお問い合わせ
お電話のお問い合わせ
会員登録済みのお客様
パークアクシス元浅草ステージ 16階
Room Detail
(外観)
(外観)
(その他建物画像)
(その他建物画像)
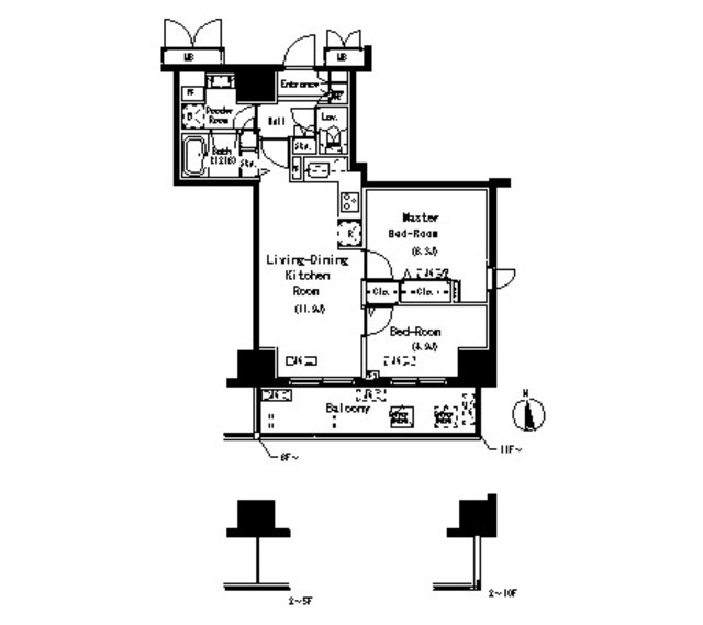
(間取)
※写真は同タイプ住戸です。(居間)
※写真は同タイプ住戸です。(玄関)
※写真は同タイプ住戸です。(キッチン)
※写真は同タイプ住戸です。(風呂)
※写真は同タイプ住戸です。(内装)
※写真は同タイプ住戸です。(内装)
(外観)
(外観)
(その他建物画像)
(その他建物画像)
(間取)
※写真は同タイプ住戸です。(居間)
※写真は同タイプ住戸です。(玄関)
※写真は同タイプ住戸です。(キッチン)
※写真は同タイプ住戸です。(風呂)
※写真は同タイプ住戸です。(内装)
※写真は同タイプ住戸です。(内装)
間取り図
物件基本情報2026年3月22日更新
家 賃 27万円 間取り 2LDK
管理費(共益費) 10,000円 面 積 52.90m²
敷 金 1ヶ月 礼 金 1ヶ月
保証金 なし 償 却 なし
周辺の交通
都営大江戸線 新御徒町駅 徒歩3分
JR山手線 御徒町駅 徒歩13分
つくばエクスプレス 新御徒町駅 徒歩3分
住   所
東京都台東区 元浅草1丁目
物件種別
マンションタイプ
完成/築年数
2008年04月/ 築17年
入居時期
期日指定: 2026年06月 下旬
構   造
鉄筋コン: 地上16階  建て  16階部分
物件番号
675417
物件基本情報2026年3月22日更新
家 賃 27万円 間取り 2LDK
管理費(共益費) 10,000円 面 積 52.90m²
敷 金 1ヶ月 礼 金 1ヶ月
保証金 なし 償 却 なし
周辺の交通
都営大江戸線 新御徒町駅 徒歩3分
JR山手線 御徒町駅 徒歩13分
つくばエクスプレス 新御徒町駅 徒歩3分
住   所
東京都台東区 元浅草1丁目
物件種別
マンションタイプ
完成/築年数
2008年04月/ 築17年
入居時期
期日指定: 2026年06月 下旬
構   造
鉄筋コン: 地上16階  建て  16階部分
物件番号
675417

間取り図

間取り図
詳細情報
  • オートロック
  • バス・トイレ別
  • 室内洗濯機置き場
  • 独立洗面台
  • フローリング
  • 楽器相談可
  • 事務所不可
  • ペット可能
  • 追い焚き
  • 浴室乾燥機
  • エアコン
  • CATV
  • CSアンテナ
  • BSアンテナ
  • 高速インターネット
  • エレベータ
  • 宅配ボックス
  • バイク置き場
  • バルコニー
  • 2階以上
取り扱い店
学芸大学店
取引形態
仲介
間取り詳細
LDK0.00帖         
備   考

普通借家契約 24ヶ月間
【めやす賃料】291250円/保証会社未加入の場合敷金+1ヶ月/小型犬・猫計2匹迄飼育の場合敷金+1

会員限定の未公開物件を多数公開中!

条件の近い物件