品川区上大崎3丁目 【賃貸居住】マンション - 東急沿線の賃貸・不動産ならバレッグス 武蔵小山の不動産・賃貸物件・お部屋探しならバレッグス武蔵小山支店
お電話のお問い合わせ
お電話のお問い合わせ
会員登録済みのお客様
CREALpremier目黒 4階
new
Room Detail
(外観)
(間取)
(内装)
(キッチン)
(居間)
(風呂)
(玄関)
(内装)
(その他建物画像)
目黒駅(613m)(周辺)
(外観)
(間取)
(内装)
(キッチン)
(居間)
(風呂)
(玄関)
(内装)
(その他建物画像)
目黒駅(613m)(周辺)
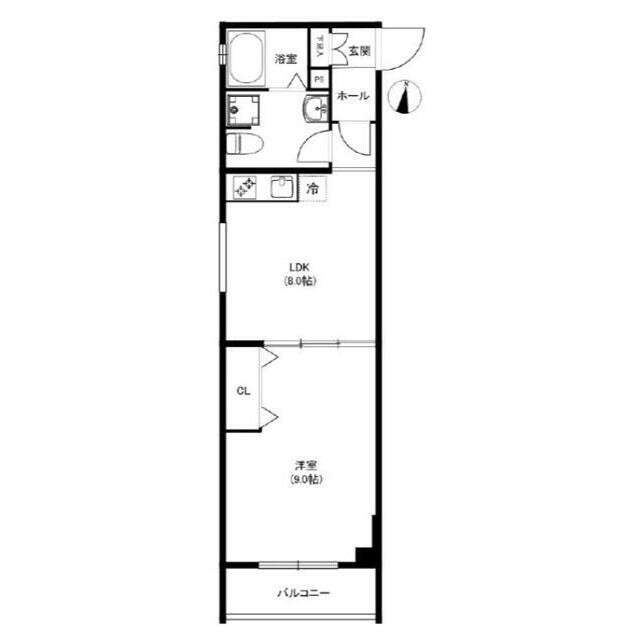
間取り図
物件基本情報2026年2月28日更新
家 賃 22.6万円 間取り 1LDK
管理費(共益費) 10,000円 面 積 40.19m²
敷 金 なし 礼 金 なし
保証金 なし 償 却 なし
周辺の交通
JR山手線 目黒駅 徒歩8分
都営浅草線 五反田駅 徒歩10分
住   所
東京都品川区 上大崎3丁目
物件種別
マンションタイプ
完成/築年数
2022年09月/ 築3年
入居時期
相談
構   造
鉄筋コン: 地上4階  地下1階 建て  4階部分
物件番号
673280
物件基本情報2026年2月28日更新
家 賃 22.6万円 間取り 1LDK
管理費(共益費) 10,000円 面 積 40.19m²
敷 金 なし 礼 金 なし
保証金 なし 償 却 なし
周辺の交通
JR山手線 目黒駅 徒歩8分
都営浅草線 五反田駅 徒歩10分
住   所
東京都品川区 上大崎3丁目
物件種別
マンションタイプ
完成/築年数
2022年09月/ 築3年
入居時期
相談
構   造
鉄筋コン: 地上4階  地下1階 建て  4階部分
物件番号
673280

間取り図

間取り図
詳細情報
  • オートロック
  • バス・トイレ別
  • 室内洗濯機置き場
  • 独立洗面台
  • フローリング
  • 2人入居可
  • ペット可能
  • 角部屋
  • システムキッチン
  • ごみ出し24時間OK
  • 浴室乾燥機
  • 温水洗浄便座
  • TVドアホン
  • 都市ガス
  • 宅配ボックス
  • 駐輪場
  • バイク置き場
  • バルコニー
  • タイル貼り
  • 2階以上
取り扱い店
武蔵小山店
取引形態
仲介
間取り詳細
LDK8.00帖 洋室9.00帖        
備   考

普通借家契約 2年間

会員限定の未公開物件を多数公開中!

条件の近い物件