品川区上大崎3丁目 【賃貸居住】マンション - 東急沿線の賃貸・不動産ならバレッグス 武蔵小山の不動産・賃貸物件・お部屋探しならバレッグス武蔵小山支店
お電話のお問い合わせ
お電話のお問い合わせ
会員登録済みのお客様
343レジデンス品川 4階
Room Detail
(外観)
(間取)
(内装)
(キッチン)
(居間)
(風呂)
(玄関)
(内装)
目黒駅(782m)(周辺)
(外観)
(間取)
(内装)
(キッチン)
(居間)
(風呂)
(玄関)
(内装)
目黒駅(782m)(周辺)
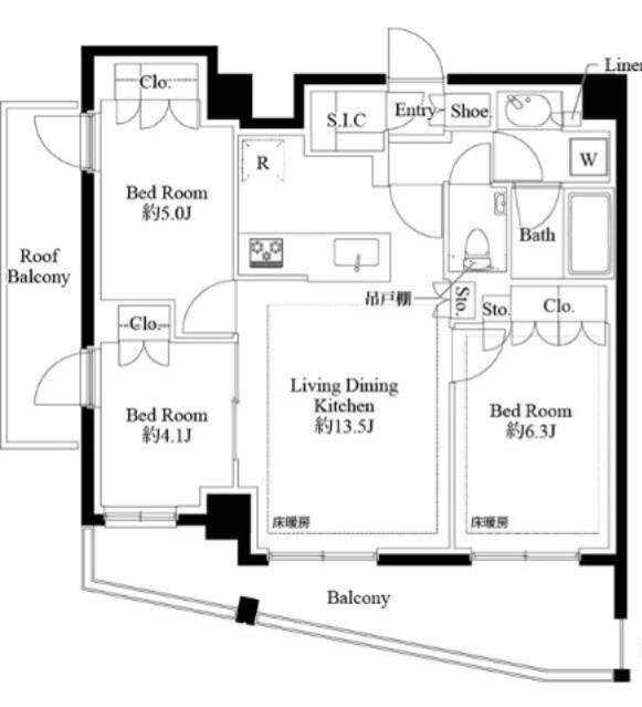
間取り図
物件基本情報2026年4月30日更新
家 賃 41.8万円 間取り 3LDK
管理費(共益費) 20,000円 面 積 63.42m²
敷 金 なし 礼 金 なし
保証金 なし 償 却 なし
周辺の交通
JR山手線 目黒駅 徒歩8分
JR山手線 五反田駅 徒歩8分
住   所
東京都品川区 上大崎3丁目
物件種別
マンションタイプ
完成/築年数
2024年05月/ 築1年
入居時期
相談
構   造
鉄筋コン: 地上4階  地下1階 建て  4階部分
物件番号
675607
物件基本情報2026年4月30日更新
家 賃 41.8万円 間取り 3LDK
管理費(共益費) 20,000円 面 積 63.42m²
敷 金 なし 礼 金 なし
保証金 なし 償 却 なし
周辺の交通
JR山手線 目黒駅 徒歩8分
JR山手線 五反田駅 徒歩8分
住   所
東京都品川区 上大崎3丁目
物件種別
マンションタイプ
完成/築年数
2024年05月/ 築1年
入居時期
相談
構   造
鉄筋コン: 地上4階  地下1階 建て  4階部分
物件番号
675607

間取り図

間取り図
詳細情報
  • オートロック
  • バス・トイレ別
  • 室内洗濯機置き場
  • 独立洗面台
  • フローリング
  • 2人入居可
  • ペット可能
  • 角部屋
  • 分譲賃貸
  • ガスコンロ
  • 三口コンロ
  • システムキッチン
  • カウンターキッチン
  • 追い焚き
  • 洗髪洗面化粧台
  • 浴室乾燥機
  • 温水洗浄便座
  • 暖房
  • エアコン
  • 床暖房
  • CATV
  • CSアンテナ
  • BSアンテナ
  • インターネット利用料無料
  • TVドアホン
  • 防犯カメラ
  • 都市ガス
  • エレベータ
  • 宅配ボックス
  • バルコニー
  • 2階以上
取り扱い店
武蔵小山店
取引形態
仲介
間取り詳細
LDK13.50帖 洋室6.30帖 洋室5.00帖 洋室4.10帖      
備   考

普通借家契約 2年間

会員限定の未公開物件を多数公開中!

条件の近い物件