ログイン
電話する
お部屋を探す
駅沿線から探す
エリアから探す
新着物件から探す
お客様の声
不動産ブログ
店舗紹介
採用サイト
お部屋を探す
お客様の声
不動産ブログ
店舗紹介
採用サイト
English Page
賃貸物件検索は
こちら
未公開物件へ
無料会員登録
当日内見可能!
今すぐ来店予約をする
ログイン
電話する
お部屋を探す
駅沿線から探す
エリアから探す
新着物件から探す
お客様の声
不動産ブログ
店舗紹介
採用サイト
お部屋を探す
お客様の声
不動産ブログ
店舗紹介
採用サイト
English Page
賃貸物件検索は
こちら
未公開物件へ
無料会員登録
当日内見可能!
今すぐ来店予約をする
会員登録済みのお客様
ログイン情報を記憶
パスワードを忘れた方はコチラ
TOPページ
東京都品川区中延4丁目
会員物件
new
Room Detail
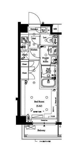
間取り図
この物件の問い合わせをする
物件基本情報
2026年4月30日更新
家 賃
9.95万円
間取り
1K
管理費
(共益費)
15,000円
面 積
20.52m²
敷 金
なし
礼 金
なし
保証金
なし
償 却
なし
周辺の交通
都営浅草線 中延駅 徒歩4分
東急大井町線 荏原町駅 徒歩7分
住 所
東京都品川区 中延4丁目
物件種別
マンションタイプ
完成/築年数
2021年07月/ 築4年
入居時期
相談
構 造
鉄筋コン: 地上6階 建て 2階部分
物件番号
681729
//メイン画像処理 $main_image_data = ''; $main_image_num = ''; $room_image_num = array(); for ($imgid = 1; $imgid <= 19; $imgid++) { $fudoimg_data = get_post_meta($post_id, "fudoimg$imgid", true); $fudoimg_type = get_post_meta($post_id, "fudoimgtype$imgid", true); if ($fudoimg_type == '2' && $fudoimg_data != '' && $main_image_data == '') { $main_image_data = $fudoimg_data; $main_image_num = $imgid; } if ($fudoimg_type == '1' && $fudoimg_data != '') { $room_image_num[] = $imgid; } } ?>
この物件の問い合わせをする
物件基本情報
2026年4月30日更新
家 賃
9.95万円
間取り
1K
管理費
(共益費)
15,000円
面 積
20.52m²
敷 金
なし
礼 金
なし
保証金
なし
償 却
なし
周辺の交通
都営浅草線 中延駅 徒歩4分
東急大井町線 荏原町駅 徒歩7分
住 所
東京都品川区 中延4丁目
物件種別
マンションタイプ
完成/築年数
2021年07月/ 築4年
入居時期
相談
構 造
鉄筋コン: 地上6階 建て 2階部分
物件番号
681729
間取り図
間取り図
この物件の問い合わせをする
詳細情報
オートロック
バス・トイレ別
室内洗濯機置き場
独立洗面台
フローリング
ペット可能
分譲賃貸
ガスコンロ
二口コンロ
システムキッチン
ごみ出し24時間OK
浴室乾燥機
温水洗浄便座
エアコン
CSアンテナ
BSアンテナ
インターネット利用料無料
防犯カメラ
都市ガス
エレベータ
宅配ボックス
駐輪場
バイク置き場
バルコニー
タイル貼り
2階以上
物件の問い合わせ
店舗へ電話
取り扱い店
都立大学店
TEL:03-3724-1125
お問い合わせはコチラへ
取引形態
仲介
間取り詳細
備 考
普通借家契約 2年間
物件のお問い合わせ
会員限定の未公開物件を多数公開中!
無料会員登録はこちら>>>
条件の近い物件
馬込駅 徒歩4分
102,000円
1K/25.36m²
戸越駅 徒歩5分
96,000円
1R/20.24m²
戸越駅 徒歩5分
103,000円
1K/20.43m²
戸越駅 徒歩8分
95,000円
1K/21.93m²
Posting....