品川区南大井2丁目 【賃貸居住】マンション - 東急沿線の賃貸・不動産ならバレッグス
お電話のお問い合わせ
お電話のお問い合わせ
会員登録済みのお客様
クオリタス南大井 6階
new
Room Detail
(外観)
(間取)
(内装)
(キッチン)
(居間)
(風呂)
(玄関)
(その他建物画像)
(その他建物画像)
大森海岸駅(521m)(周辺)
(外観)
(間取)
(内装)
(キッチン)
(居間)
(風呂)
(玄関)
(その他建物画像)
(その他建物画像)
大森海岸駅(521m)(周辺)
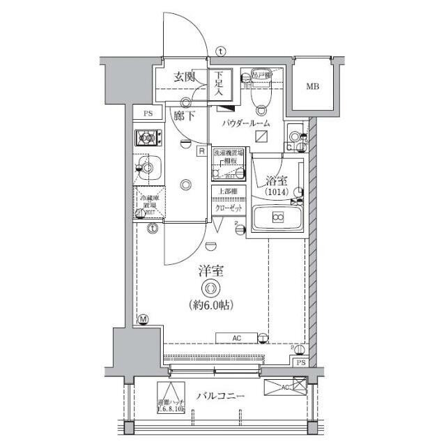
間取り図
物件基本情報2026年4月25日更新
家 賃 11.5万円 間取り 1K
管理費(共益費) 15,000円 面 積 20.20m²
敷 金 なし 礼 金 0.5ヶ月
保証金 なし 償 却 なし
周辺の交通
京急本線 大森海岸駅 徒歩8分
JR京浜東北・根岸線 大森駅 徒歩13分
住   所
東京都品川区 南大井2丁目
物件種別
マンションタイプ
完成/築年数
2022年01月/ 築4年
入居時期
期日指定: 2026年06月 中旬
構   造
鉄筋コン: 地上12階  建て  6階部分
物件番号
680876
物件基本情報2026年4月25日更新
家 賃 11.5万円 間取り 1K
管理費(共益費) 15,000円 面 積 20.20m²
敷 金 なし 礼 金 0.5ヶ月
保証金 なし 償 却 なし
周辺の交通
京急本線 大森海岸駅 徒歩8分
JR京浜東北・根岸線 大森駅 徒歩13分
住   所
東京都品川区 南大井2丁目
物件種別
マンションタイプ
完成/築年数
2022年01月/ 築4年
入居時期
期日指定: 2026年06月 中旬
構   造
鉄筋コン: 地上12階  建て  6階部分
物件番号
680876

間取り図

間取り図
詳細情報
  • オートロック
  • バス・トイレ別
  • 室内洗濯機置き場
  • 独立洗面台
  • フローリング
  • 2人入居可
  • ペット可能
  • システムキッチン
  • 浴室乾燥機
  • 温水洗浄便座
  • エアコン
  • CSアンテナ
  • BSアンテナ
  • インターネット利用料無料
  • TVドアホン
  • 都市ガス
  • エレベータ
  • 宅配ボックス
  • バイク置き場
  • タイル貼り
  • デザイナーズ
  • 2階以上
取り扱い店
品川駅前店
取引形態
仲介
間取り詳細
         
備   考

普通借家契約 2年間

会員限定の未公開物件を多数公開中!

条件の近い物件