品川区南大井3丁目 【賃貸居住】マンション - 東急沿線の賃貸・不動産ならバレッグス 武蔵小山の不動産・賃貸物件・お部屋探しならバレッグス武蔵小山支店
お電話のお問い合わせ
お電話のお問い合わせ
会員登録済みのお客様
ルーブル大森八番館 2階
new
Room Detail
(外観)
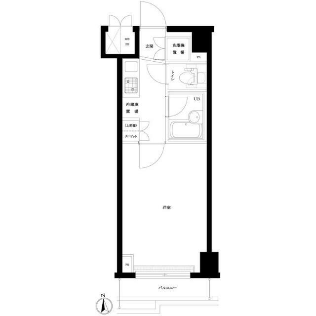
(間取)
インターホン
(キッチン)
(居間)
(風呂)
(玄関)
(内装)
クローゼット(内装)
ダブルロック
(その他建物画像)
エレベーター
駐輪場(その他建物画像)
大森駅(1006m)(周辺)
(外観)
(間取)
インターホン
(キッチン)
(居間)
(風呂)
(玄関)
(内装)
クローゼット(内装)
ダブルロック
(その他建物画像)
エレベーター
駐輪場(その他建物画像)
大森駅(1006m)(周辺)
間取り図
物件基本情報2026年4月12日更新
家 賃 9.8万円 間取り 1K
管理費(共益費) なし 面 積 21.00m²
敷 金 なし 礼 金 1ヶ月
保証金 なし 償 却 なし
周辺の交通
JR京浜東北・根岸線 大森駅 徒歩8分
京急本線 大森海岸駅 徒歩6分
住   所
東京都品川区 南大井3丁目
物件種別
マンションタイプ
完成/築年数
2011年07月/ 築14年
入居時期
相談
構   造
鉄筋コン: 地上8階  建て  2階部分
物件番号
678739
物件基本情報2026年4月12日更新
家 賃 9.8万円 間取り 1K
管理費(共益費) なし 面 積 21.00m²
敷 金 なし 礼 金 1ヶ月
保証金 なし 償 却 なし
周辺の交通
JR京浜東北・根岸線 大森駅 徒歩8分
京急本線 大森海岸駅 徒歩6分
住   所
東京都品川区 南大井3丁目
物件種別
マンションタイプ
完成/築年数
2011年07月/ 築14年
入居時期
相談
構   造
鉄筋コン: 地上8階  建て  2階部分
物件番号
678739

間取り図

間取り図
詳細情報
  • オートロック
  • バス・トイレ別
  • 室内洗濯機置き場
  • 独立洗面台
  • フローリング
  • ガスコンロ
  • 二口コンロ
  • システムキッチン
  • ごみ出し24時間OK
  • 浴室乾燥機
  • 温水洗浄便座
  • エアコン
  • CATV
  • CSアンテナ
  • BSアンテナ
  • TVドアホン
  • 防犯カメラ
  • 都市ガス
  • エレベータ
  • 宅配ボックス
  • 駐輪場
  • バルコニー
  • 2階以上
取り扱い店
武蔵小山店
取引形態
仲介
間取り詳細
K1.50帖 洋室6.50帖        
備   考

普通借家契約 2年間

会員限定の未公開物件を多数公開中!

条件の近い物件