

大森駅 徒歩7分
121,000円
1R/23.13m²
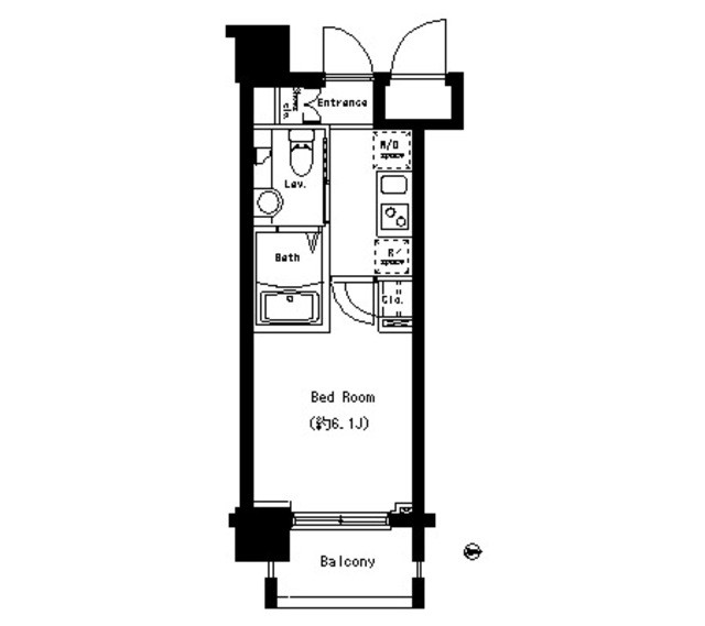
| 家 賃 | 12.2万円 | 間取り | 1K |
|---|---|---|---|
| 管理費(共益費) | 10,000円 | 面 積 | 20.49m² |
| 敷 金 | 1ヶ月 | 礼 金 | 1ヶ月 |
| 保証金 | なし | 償 却 | なし |
| 家 賃 | 12.2万円 | 間取り | 1K |
|---|---|---|---|
| 管理費(共益費) | 10,000円 | 面 積 | 20.49m² |
| 敷 金 | 1ヶ月 | 礼 金 | 1ヶ月 |
| 保証金 | なし | 償 却 | なし |
普通借家契約 24ヶ月間
【めやす賃料】137084円/1年未満解約賃料1ヶ月の違約金有/保証会社加入必須※大手法人等未加入の
会員限定の未公開物件を多数公開中!
