品川区旗の台1丁目 【賃貸居住】一戸建 - 東急沿線の賃貸・不動産ならバレッグス
お電話のお問い合わせ
お電話のお問い合わせ
会員登録済みのお客様
デザインコート旗の台 2階
new
Room Detail
(外観)
(その他建物画像)
(間取)
(居間)
(居間)
(居間)
(キッチン)
(風呂)
(内装)
(内装)
(玄関)
(内装)
(内装)
(外観)
(その他建物画像)
(間取)
(居間)
(居間)
(居間)
(キッチン)
(風呂)
(内装)
(内装)
(玄関)
(内装)
(内装)
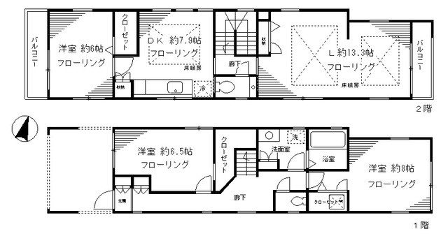
間取り図
物件基本情報2026年2月12日更新
家 賃 37万円 間取り 3LDK
管理費(共益費) なし 面 積 103.09m²
敷 金 1ヶ月 礼 金 2ヶ月
保証金 なし 償 却 なし
周辺の交通
東急大井町線 旗の台駅 徒歩6分
東急池上線 旗の台駅 徒歩6分
住   所
東京都品川区 旗の台1丁目
物件種別
一戸建タイプ
完成/築年数
2013年03月/ 築12年
入居時期
期日指定: 2026年04月 中旬
構   造
木造: 地上2階  建て  2階部分
物件番号
670310
物件基本情報2026年2月12日更新
家 賃 37万円 間取り 3LDK
管理費(共益費) なし 面 積 103.09m²
敷 金 1ヶ月 礼 金 2ヶ月
保証金 なし 償 却 なし
周辺の交通
東急大井町線 旗の台駅 徒歩6分
東急池上線 旗の台駅 徒歩6分
住   所
東京都品川区 旗の台1丁目
物件種別
一戸建タイプ
完成/築年数
2013年03月/ 築12年
入居時期
期日指定: 2026年04月 中旬
構   造
木造: 地上2階  建て  2階部分
物件番号
670310

間取り図

間取り図
詳細情報
  • オートロック
  • バス・トイレ別
  • 室内洗濯機置き場
  • 独立洗面台
  • フローリング
  • 楽器相談可
  • 事務所不可
  • ペット可能
  • ガスコンロ
  • 三口コンロ
  • システムキッチン
  • 追い焚き
  • 浴室乾燥機
  • 温水洗浄便座
  • 暖房
  • エアコン
  • 床暖房
  • CATV
  • TVドアホン
  • 都市ガス
  • 専用庭
  • バルコニー
  • 2階以上
取り扱い店
学芸大学店
取引形態
仲介
間取り詳細
LDK21.20帖 洋室8.00帖 洋室6.50帖 洋室6.00帖      
備   考

普通借家契約 2年間
~三井ホーム施工~

会員限定の未公開物件を多数公開中!

条件の近い物件