品川区荏原4丁目 【賃貸居住】マンション - 東急沿線の賃貸・不動産ならバレッグス 武蔵小山の不動産・賃貸物件・お部屋探しならバレッグス武蔵小山支店
お電話のお問い合わせ
お電話のお問い合わせ
会員登録済みのお客様
ラフィネ武蔵小山 8階
Room Detail
(外観)
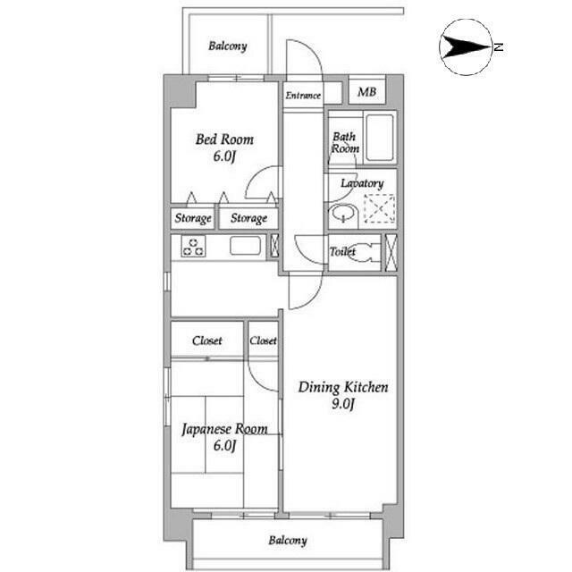
(間取)
(その他建物画像)
※同仕様写真(キッチン)
※同仕様写真(居間)
※同仕様写真(風呂)
※同仕様写真
※同仕様写真(内装)
※同仕様写真(内装)
※同仕様写真(内装)
戸越銀座駅(661m)(周辺)
※同仕様写真
(外観)
(間取)
(その他建物画像)
※同仕様写真(キッチン)
※同仕様写真(居間)
※同仕様写真(風呂)
※同仕様写真
※同仕様写真(内装)
※同仕様写真(内装)
※同仕様写真(内装)
戸越銀座駅(661m)(周辺)
※同仕様写真
間取り図
物件基本情報2025年12月16日更新
家 賃 20万円 間取り 2DK
管理費(共益費) 15,000円 面 積 55.55m²
敷 金 1ヶ月 礼 金 1ヶ月
保証金 なし 償 却 なし
周辺の交通
東急池上線 戸越銀座駅 徒歩9分
東急目黒線 武蔵小山駅 徒歩11分
住   所
東京都品川区 荏原4丁目
物件種別
マンションタイプ
完成/築年数
2002年09月/ 築23年
入居時期
即時
構   造
鉄筋鉄骨: 地上10階  建て  8階部分
物件番号
659578
物件基本情報2025年12月16日更新
家 賃 20万円 間取り 2DK
管理費(共益費) 15,000円 面 積 55.55m²
敷 金 1ヶ月 礼 金 1ヶ月
保証金 なし 償 却 なし
周辺の交通
東急池上線 戸越銀座駅 徒歩9分
東急目黒線 武蔵小山駅 徒歩11分
住   所
東京都品川区 荏原4丁目
物件種別
マンションタイプ
完成/築年数
2002年09月/ 築23年
入居時期
即時
構   造
鉄筋鉄骨: 地上10階  建て  8階部分
物件番号
659578

間取り図

間取り図
詳細情報
  • オートロック
  • バス・トイレ別
  • 室内洗濯機置き場
  • 独立洗面台
  • フローリング
  • ガスコンロ
  • 三口コンロ
  • システムキッチン
  • トランクルーム
  • 光ファイバー
  • TVドアホン
  • 宅配ボックス
  • 2階以上
取り扱い店
武蔵小山店
取引形態
仲介
間取り詳細
DK9.00帖 和室6.00帖 洋室6.00帖       
備   考

普通借家契約 2年間

会員限定の未公開物件を多数公開中!

条件の近い物件