

八広駅 徒歩4分
246,000円
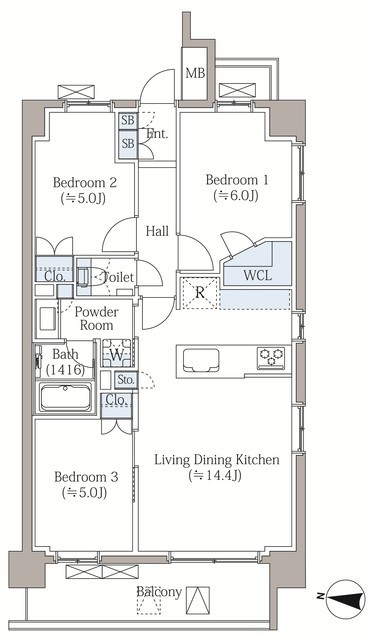
3LDK/65.00m²
| 家 賃 | 24.9万円 | 間取り | 3LDK |
|---|---|---|---|
| 管理費(共益費) | 15,000円 | 面 積 | 65.00m² |
| 敷 金 | 1ヶ月 | 礼 金 | 2ヶ月 |
| 保証金 | なし | 償 却 | なし |
| 家 賃 | 24.9万円 | 間取り | 3LDK |
|---|---|---|---|
| 管理費(共益費) | 15,000円 | 面 積 | 65.00m² |
| 敷 金 | 1ヶ月 | 礼 金 | 2ヶ月 |
| 保証金 | なし | 償 却 | なし |
普通借家契約 24ヶ月間
【めやす賃料】279563円/■インターネット「オープンハウス・マンション光Powered by U
会員限定の未公開物件を多数公開中!
