墨田区八広6丁目 【賃貸居住】マンション - 東急沿線の賃貸・不動産ならバレッグス
お電話のお問い合わせ
お電話のお問い合わせ
会員登録済みのお客様
イノバスすみだ八広 1階
new
Room Detail
(外観)
(間取)
(外観)
(間取)
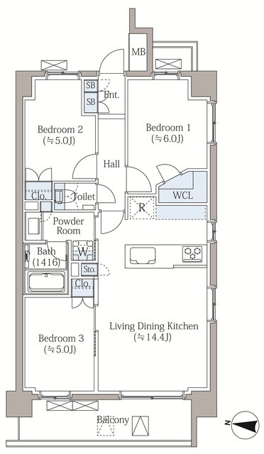
間取り図
物件基本情報2026年4月22日更新
家 賃 24.1万円 間取り 3LDK
管理費(共益費) 15,000円 面 積 65.00m²
敷 金 1ヶ月 礼 金 2ヶ月
保証金 なし 償 却 なし
周辺の交通
京成押上線 八広駅 徒歩4分
住   所
東京都墨田区 八広6丁目
物件種別
マンションタイプ
完成/築年数
2026年05月/ 新築
入居時期
期日指定: 2026年06月 中旬
構   造
鉄筋コン: 地上5階  建て  1階部分
物件番号
681008
物件基本情報2026年4月22日更新
家 賃 24.1万円 間取り 3LDK
管理費(共益費) 15,000円 面 積 65.00m²
敷 金 1ヶ月 礼 金 2ヶ月
保証金 なし 償 却 なし
周辺の交通
京成押上線 八広駅 徒歩4分
住   所
東京都墨田区 八広6丁目
物件種別
マンションタイプ
完成/築年数
2026年05月/ 新築
入居時期
期日指定: 2026年06月 中旬
構   造
鉄筋コン: 地上5階  建て  1階部分
物件番号
681008

間取り図

間取り図
詳細情報
  • オートロック
  • バス・トイレ別
  • 室内洗濯機置き場
  • 独立洗面台
  • フローリング
  • 事務所不可
  • システムキッチン
  • 追い焚き
  • 浴室乾燥機
  • エアコン
  • W.INクローゼット
  • エレベータ
  • 宅配ボックス
  • バイク置き場
  • バルコニー
取り扱い店
学芸大学店
取引形態
仲介
間取り詳細
LDK0.00帖         
備   考

普通借家契約 24ヶ月間
【めやす賃料】271063円/■インターネット「オープンハウス・マンション光Powered by U

会員限定の未公開物件を多数公開中!

条件の近い物件