

旗の台駅 徒歩10分
110,000円
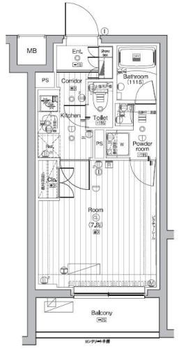
1K/25.92m²
お部屋探しは【年間仲介実績5000件超】の『バレッグス』へ
家 賃 | 12万円 | 間取り | 1K |
---|---|---|---|
管理費(共益費) | 15,000円 | 面 積 | 25.95m² |
敷 金 | なし | 礼 金 | 1ヶ月 |
保証金 | なし | 償 却 | なし |
家 賃 | 12万円 | 間取り | 1K |
---|---|---|---|
管理費(共益費) | 15,000円 | 面 積 | 25.95m² |
敷 金 | なし | 礼 金 | 1ヶ月 |
保証金 | なし | 償 却 | なし |
普通借家契約 2年間
詳細はお気軽にお問合せください。※画像は同仕様写真等を含む場合あり、その他掲載情報についても現況優先
会員限定の未公開物件を多数公開中!