大田区大森西5丁目 【賃貸居住】マンション - 東急沿線の賃貸・不動産ならバレッグス
お電話のお問い合わせ
お電話のお問い合わせ
会員登録済みのお客様
FORTIS大森 1階
new
Room Detail
(外観)
(間取)
(内装)
(キッチン)
(居間)
(内装)
(内装)
(その他建物画像)
(その他建物画像)
大森町駅(320m)(周辺)
(外観)
(間取)
(内装)
(キッチン)
(居間)
(内装)
(内装)
(その他建物画像)
(その他建物画像)
大森町駅(320m)(周辺)
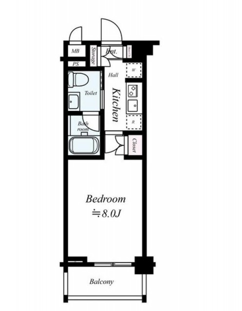
間取り図
物件基本情報2026年2月28日更新
家 賃 9.4万円 間取り 1K
管理費(共益費) 5,000円 面 積 25.50m²
敷 金 なし 礼 金 1ヶ月
保証金 なし 償 却 なし
周辺の交通
京急本線 大森町駅 徒歩4分
京急本線 梅屋敷駅 徒歩5分
住   所
東京都大田区 大森西5丁目
物件種別
マンションタイプ
完成/築年数
2007年04月/ 築18年
入居時期
即時
構   造
鉄筋コン: 地上6階  建て  1階部分
物件番号
672999
物件基本情報2026年2月28日更新
家 賃 9.4万円 間取り 1K
管理費(共益費) 5,000円 面 積 25.50m²
敷 金 なし 礼 金 1ヶ月
保証金 なし 償 却 なし
周辺の交通
京急本線 大森町駅 徒歩4分
京急本線 梅屋敷駅 徒歩5分
住   所
東京都大田区 大森西5丁目
物件種別
マンションタイプ
完成/築年数
2007年04月/ 築18年
入居時期
即時
構   造
鉄筋コン: 地上6階  建て  1階部分
物件番号
672999

間取り図

間取り図
詳細情報
  • オートロック
  • バス・トイレ別
  • 室内洗濯機置き場
  • 独立洗面台
  • フローリング
  • 2人入居可
  • 分譲賃貸
  • ガスコンロ
  • 二口コンロ
  • システムキッチン
  • 浴室乾燥機
  • 温水洗浄便座
  • CATV
  • CSアンテナ
  • BSアンテナ
  • TVドアホン
  • 都市ガス
  • 宅配ボックス
  • バルコニー
取り扱い店
品川駅前店
取引形態
仲介
間取り詳細
         
備   考

普通借家契約 2年間

会員限定の未公開物件を多数公開中!

条件の近い物件