大田区蒲田1丁目 【賃貸居住】マンション - 東急沿線の賃貸・不動産ならバレッグス
お電話のお問い合わせ
お電話のお問い合わせ
会員登録済みのお客様
ECREDE蒲田 3階
new
Room Detail
(外観)
(間取)
(内装)
(キッチン)
(居間)
(風呂)
(内装)
(内装)
梅屋敷駅(645m)(周辺)
(その他建物画像)
(外観)
(間取)
(内装)
(キッチン)
(居間)
(風呂)
(内装)
(内装)
梅屋敷駅(645m)(周辺)
(その他建物画像)
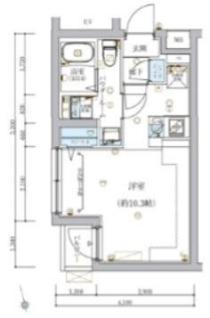
間取り図
物件基本情報2026年1月11日更新
家 賃 10.5万円 間取り 1R
管理費(共益費) 15,000円 面 積 25.26m²
敷 金 なし 礼 金 1ヶ月
保証金 なし 償 却 なし
周辺の交通
京急本線 梅屋敷駅 徒歩8分
京急本線 京急蒲田駅 徒歩11分
住   所
東京都大田区 蒲田1丁目
物件種別
マンションタイプ
完成/築年数
2025年03月/ 新築
入居時期
相談
構   造
鉄筋コン: 地上5階  建て  3階部分
物件番号
665415
物件基本情報2026年1月11日更新
家 賃 10.5万円 間取り 1R
管理費(共益費) 15,000円 面 積 25.26m²
敷 金 なし 礼 金 1ヶ月
保証金 なし 償 却 なし
周辺の交通
京急本線 梅屋敷駅 徒歩8分
京急本線 京急蒲田駅 徒歩11分
住   所
東京都大田区 蒲田1丁目
物件種別
マンションタイプ
完成/築年数
2025年03月/ 新築
入居時期
相談
構   造
鉄筋コン: 地上5階  建て  3階部分
物件番号
665415

間取り図

間取り図
詳細情報
  • オートロック
  • バス・トイレ別
  • 室内洗濯機置き場
  • 独立洗面台
  • フローリング
  • IHコンロ
  • 二口コンロ
  • システムキッチン
  • カウンターキッチン
  • 浴室乾燥機
  • 温水洗浄便座
  • TVドアホン
  • 防犯カメラ
  • 都市ガス
  • 宅配ボックス
  • 駐輪場
  • バイク置き場
  • 2階以上
取り扱い店
品川駅前店
取引形態
仲介
間取り詳細
洋室10.30帖         
備   考

普通借家契約 2年間

会員限定の未公開物件を多数公開中!

条件の近い物件