大田区鵜の木3丁目 【賃貸居住】マンション - 東急沿線の賃貸・不動産ならバレッグス
お電話のお問い合わせ
お電話のお問い合わせ
会員登録済みのお客様
セジョリ鵜の木 2階
new
Room Detail
(外観)
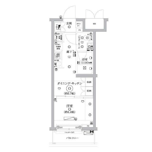
(間取)
(キッチン)
(居間)
(風呂)
(玄関)
(内装)
(内装)
鵜の木駅(641m)(周辺)
(外観)
(間取)
(キッチン)
(居間)
(風呂)
(玄関)
(内装)
(内装)
鵜の木駅(641m)(周辺)
間取り図
物件基本情報2026年3月16日更新
家 賃 11.3万円 間取り 1DK
管理費(共益費) 15,000円 面 積 25.83m²
敷 金 なし 礼 金 なし
保証金 なし 償 却 なし
周辺の交通
東急多摩川線 鵜の木駅 徒歩7分
東急池上線 久が原駅 徒歩13分
住   所
東京都大田区 鵜の木3丁目
物件種別
マンションタイプ
完成/築年数
2022年08月/ 築3年
入居時期
期日指定: 2026年05月 中旬
構   造
鉄筋コン: 地上4階  建て  2階部分
物件番号
674803
物件基本情報2026年3月16日更新
家 賃 11.3万円 間取り 1DK
管理費(共益費) 15,000円 面 積 25.83m²
敷 金 なし 礼 金 なし
保証金 なし 償 却 なし
周辺の交通
東急多摩川線 鵜の木駅 徒歩7分
東急池上線 久が原駅 徒歩13分
住   所
東京都大田区 鵜の木3丁目
物件種別
マンションタイプ
完成/築年数
2022年08月/ 築3年
入居時期
期日指定: 2026年05月 中旬
構   造
鉄筋コン: 地上4階  建て  2階部分
物件番号
674803

間取り図

間取り図
詳細情報
  • オートロック
  • バス・トイレ別
  • 室内洗濯機置き場
  • 独立洗面台
  • フローリング
  • 2人入居可
  • ペット可能
  • システムキッチン
  • 浴室乾燥機
  • 浴室TV
  • 温水洗浄便座
  • CSアンテナ
  • BSアンテナ
  • インターネット利用料無料
  • TVドアホン
  • 都市ガス
  • 宅配ボックス
  • バイク置き場
  • タイル貼り
  • デザイナーズ
  • 2階以上
取り扱い店
大岡山店
取引形態
仲介
間取り詳細
洋室4.40帖         
備   考

普通借家契約 2年間

会員限定の未公開物件を多数公開中!

条件の近い物件