川崎市中原区中丸子 【賃貸居住】マンション - 東急沿線の賃貸・不動産ならバレッグス
お電話のお問い合わせ
お電話のお問い合わせ
会員登録済みのお客様
ハーモニーレジデンス武蔵小杉 2階
new
Room Detail
(外観)
(間取)
(キッチン)
(居間)
(風呂)
(玄関)
(内装)
(内装)
(内装)
武蔵小杉駅(1133m)(周辺)
(外観)
(間取)
(キッチン)
(居間)
(風呂)
(玄関)
(内装)
(内装)
(内装)
武蔵小杉駅(1133m)(周辺)
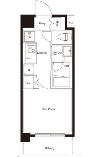
間取り図
物件基本情報2026年2月28日更新
家 賃 9.4万円 間取り 1K
管理費(共益費) 15,000円 面 積 20.44m²
敷 金 なし 礼 金 なし
保証金 2ヶ月 償 却 18.8万円
周辺の交通
東急東横線 武蔵小杉駅 徒歩12分
湘南新宿ライン高海 武蔵小杉駅 徒歩8分
住   所
神奈川県川崎市中原区 中丸子
物件種別
マンションタイプ
完成/築年数
2016年06月/ 築9年
入居時期
相談
構   造
鉄筋コン: 地上6階  建て  2階部分
物件番号
673325
物件基本情報2026年2月28日更新
家 賃 9.4万円 間取り 1K
管理費(共益費) 15,000円 面 積 20.44m²
敷 金 なし 礼 金 なし
保証金 2ヶ月 償 却 18.8万円
周辺の交通
東急東横線 武蔵小杉駅 徒歩12分
湘南新宿ライン高海 武蔵小杉駅 徒歩8分
住   所
神奈川県川崎市中原区 中丸子
物件種別
マンションタイプ
完成/築年数
2016年06月/ 築9年
入居時期
相談
構   造
鉄筋コン: 地上6階  建て  2階部分
物件番号
673325

間取り図

間取り図
詳細情報
  • オートロック
  • バス・トイレ別
  • 室内洗濯機置き場
  • 独立洗面台
  • フローリング
  • 2人入居可
  • ペット可能
  • ガスコンロ
  • 二口コンロ
  • システムキッチン
  • 洗髪洗面化粧台
  • 浴室乾燥機
  • 温水洗浄便座
  • CSアンテナ
  • BSアンテナ
  • 宅配ボックス
  • バルコニー
  • 2階以上
取り扱い店
自由が丘店
取引形態
仲介
間取り詳細
         
備   考

普通借家契約 1年間

会員限定の未公開物件を多数公開中!

条件の近い物件