

浅草橋駅 徒歩2分
202,000円
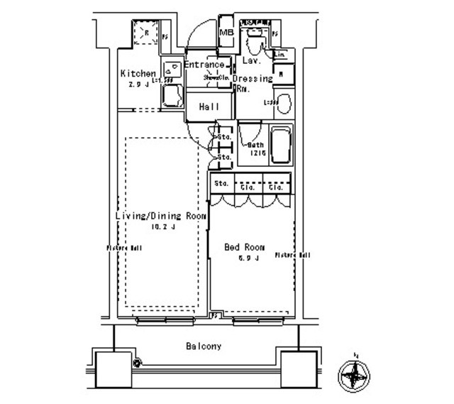
1LDK/40.27m²
| 家 賃 | 20.2万円 | 間取り | 1LDK |
|---|---|---|---|
| 管理費(共益費) | 10,000円 | 面 積 | 44.57m² |
| 敷 金 | 1ヶ月 | 礼 金 | 1ヶ月 |
| 保証金 | なし | 償 却 | なし |
| 家 賃 | 20.2万円 | 間取り | 1LDK |
|---|---|---|---|
| 管理費(共益費) | 10,000円 | 面 積 | 44.57m² |
| 敷 金 | 1ヶ月 | 礼 金 | 1ヶ月 |
| 保証金 | なし | 償 却 | なし |
普通借家契約 24ヶ月間
【めやす賃料】220417円/短期1ペナ有/小型犬2匹迄+敷1/保証会社必須法人未加入時+敷1/駐輪
会員限定の未公開物件を多数公開中!
