

四谷三丁目駅 徒歩5分
237,000円
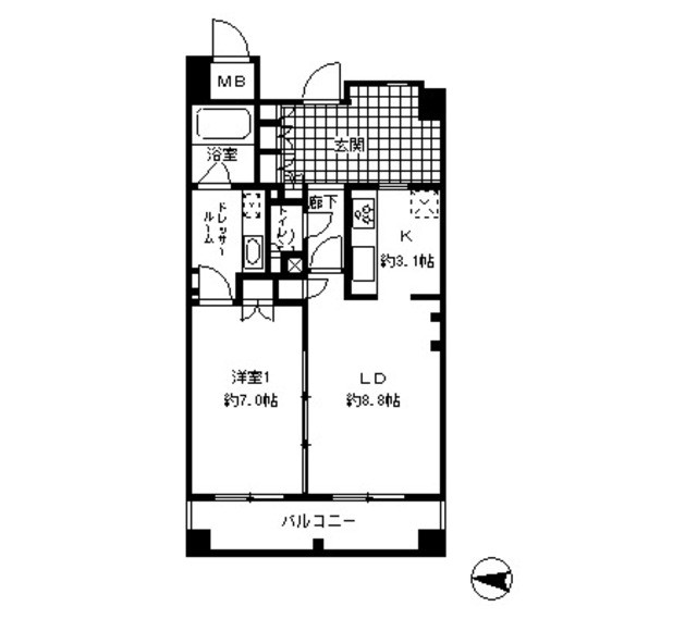
1LDK/37.70m²
| 家 賃 | 24.5万円 | 間取り | 1LDK |
|---|---|---|---|
| 管理費(共益費) | 10,000円 | 面 積 | 51.19m² |
| 敷 金 | 1ヶ月 | 礼 金 | なし |
| 保証金 | なし | 償 却 | なし |
| 家 賃 | 24.5万円 | 間取り | 1LDK |
|---|---|---|---|
| 管理費(共益費) | 10,000円 | 面 積 | 51.19m² |
| 敷 金 | 1ヶ月 | 礼 金 | なし |
| 保証金 | なし | 償 却 | なし |
定期借家契約 【めやす賃料】255000円/ 再契約可/短期解約違約金あり/保証会社必須 法人未加入時+敷1/駐輪
会員限定の未公開物件を多数公開中!
