

西台駅 徒歩8分
100,000円
1LDK/31.38m²
家 賃 | 10万円 | 間取り | 1K |
---|---|---|---|
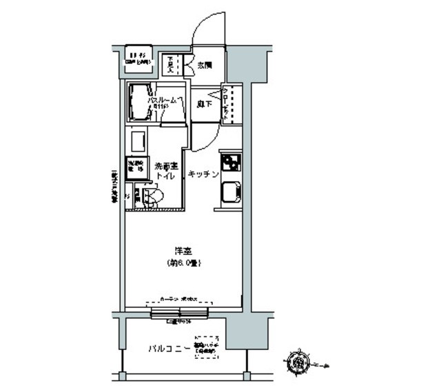
管理費(共益費) | 5,000円 | 面 積 | 23.97m² |
敷 金 | 1ヶ月 | 礼 金 | 1ヶ月 |
保証金 | なし | 償 却 | なし |
家 賃 | 10万円 | 間取り | 1K |
---|---|---|---|
管理費(共益費) | 5,000円 | 面 積 | 23.97m² |
敷 金 | 1ヶ月 | 礼 金 | 1ヶ月 |
保証金 | なし | 償 却 | なし |
普通借家契約 24ヶ月間
【めやす賃料】109167円/1年未満解約賃料1ヶ月違約金有/要保証会社加入※大手法人未加入敷2/1
会員限定の未公開物件を多数公開中!