

芝公園駅 徒歩4分
180,000円
2DK/42.32m²
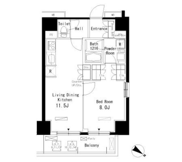
| 家 賃 | 18.6万円 | 間取り | 1LDK |
|---|---|---|---|
| 管理費(共益費) | 10,000円 | 面 積 | 47.79m² |
| 敷 金 | 1ヶ月 | 礼 金 | 1ヶ月 |
| 保証金 | なし | 償 却 | なし |
| 家 賃 | 18.6万円 | 間取り | 1LDK |
|---|---|---|---|
| 管理費(共益費) | 10,000円 | 面 積 | 47.79m² |
| 敷 金 | 1ヶ月 | 礼 金 | 1ヶ月 |
| 保証金 | なし | 償 却 | なし |
普通借家契約 24ヶ月間
【めやす賃料】203750円/1年未満解約賃料1ヶ月の違約金有/ペット+敷1/保証会社必須・法人未入
会員限定の未公開物件を多数公開中!
