渋谷区恵比寿3丁目 【賃貸居住】マンション - 東急沿線の賃貸・不動産ならバレッグス
お電話のお問い合わせ
お電話のお問い合わせ
会員登録済みのお客様
アヴァンタージュ恵比寿 B1階
new
Room Detail
(外観)
(間取)
(キッチン)
(居間)
※同仕様写真(風呂)
(内装)
(内装)
恵比寿駅(1233m)(周辺)
(外観)
(間取)
(キッチン)
(居間)
※同仕様写真(風呂)
(内装)
(内装)
恵比寿駅(1233m)(周辺)
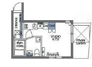
間取り図
物件基本情報2026年1月20日更新
家 賃 11.2万円 間取り 1R
管理費(共益費) 9,500円 面 積 18.13m²
敷 金 1ヶ月 礼 金 1ヶ月
保証金 なし 償 却 なし
周辺の交通
JR山手線 恵比寿駅 徒歩11分
東京メトロ日比谷線 広尾駅 徒歩10分
住   所
東京都渋谷区 恵比寿3丁目
物件種別
マンションタイプ
完成/築年数
2022年11月/ 築3年
入居時期
相談
構   造
鉄筋コン: 地上4階  地下1階 建て  B1階部分
物件番号
667627
物件基本情報2026年1月20日更新
家 賃 11.2万円 間取り 1R
管理費(共益費) 9,500円 面 積 18.13m²
敷 金 1ヶ月 礼 金 1ヶ月
保証金 なし 償 却 なし
周辺の交通
JR山手線 恵比寿駅 徒歩11分
東京メトロ日比谷線 広尾駅 徒歩10分
住   所
東京都渋谷区 恵比寿3丁目
物件種別
マンションタイプ
完成/築年数
2022年11月/ 築3年
入居時期
相談
構   造
鉄筋コン: 地上4階  地下1階 建て  B1階部分
物件番号
667627

間取り図

間取り図
詳細情報
  • オートロック
  • バス・トイレ別
  • 室内洗濯機置き場
  • 独立洗面台
  • フローリング
  • 角部屋
  • IHコンロ
  • 二口コンロ
  • システムキッチン
  • ごみ出し24時間OK
  • 浴室乾燥機
  • 温水洗浄便座
  • TVドアホン
  • 宅配ボックス
  • オール電化
取り扱い店
品川駅前店
取引形態
仲介
間取り詳細
洋室6.70帖         
備   考

普通借家契約 2年間

会員限定の未公開物件を多数公開中!

条件の近い物件