

外苑前駅 徒歩5分
520,000円
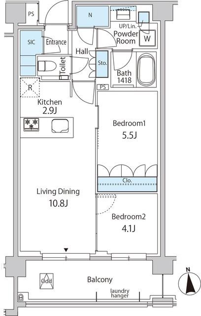
2LDK/78.29m²
| 家 賃 | 34.8万円 | 間取り | 2LDK |
|---|---|---|---|
| 管理費(共益費) | なし | 面 積 | 56.09m² |
| 敷 金 | 1ヶ月 | 礼 金 | 2ヶ月 |
| 保証金 | なし | 償 却 | なし |
| 家 賃 | 34.8万円 | 間取り | 2LDK |
|---|---|---|---|
| 管理費(共益費) | なし | 面 積 | 56.09m² |
| 敷 金 | 1ヶ月 | 礼 金 | 2ヶ月 |
| 保証金 | なし | 償 却 | なし |
定期借家契約 定借2年(再契約相談可)1年未満解約違約金有・駐輪場1台込(7番変更不可・ステッカー代1,100円(
会員限定の未公開物件を多数公開中!
