目黒区下目黒2丁目 【賃貸居住】マンション - 東急沿線の賃貸・不動産ならバレッグス
お電話のお問い合わせ
お電話のお問い合わせ
会員登録済みのお客様
トレステージ目黒 6階
Room Detail
(外観)
(外観)
(その他建物画像)
(その他建物画像)
(その他建物画像)
(その他建物画像)
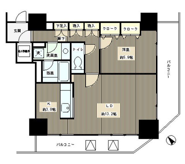
(間取)
※写真は同タイプ住戸です。(居間)
※写真は同タイプ住戸です。(玄関)
※写真は同タイプ住戸です。(キッチン)
※写真は同タイプ住戸です。(風呂)
※写真は同タイプ住戸です。(内装)
※写真は同タイプ住戸です。(内装)
※写真は同タイプ住戸です。(内装)
※写真は同タイプ住戸です。
(外観)
(外観)
(その他建物画像)
(その他建物画像)
(その他建物画像)
(その他建物画像)
(間取)
※写真は同タイプ住戸です。(居間)
※写真は同タイプ住戸です。(玄関)
※写真は同タイプ住戸です。(キッチン)
※写真は同タイプ住戸です。(風呂)
※写真は同タイプ住戸です。(内装)
※写真は同タイプ住戸です。(内装)
※写真は同タイプ住戸です。(内装)
※写真は同タイプ住戸です。
間取り図
物件基本情報2026年3月3日更新
家 賃 27.5万円 間取り 1LDK
管理費(共益費) なし 面 積 57.40m²
敷 金 1ヶ月 礼 金 1ヶ月
保証金 なし 償 却 なし
周辺の交通
JR山手線 目黒駅 徒歩9分
東急目黒線 不動前駅 徒歩10分
住   所
東京都目黒区 下目黒2丁目
物件種別
マンションタイプ
完成/築年数
2004年02月/ 築22年
入居時期
期日指定: 2026年04月 中旬
構   造
鉄筋鉄骨: 地上18階  建て  6階部分
物件番号
672193
物件基本情報2026年3月3日更新
家 賃 27.5万円 間取り 1LDK
管理費(共益費) なし 面 積 57.40m²
敷 金 1ヶ月 礼 金 1ヶ月
保証金 なし 償 却 なし
周辺の交通
JR山手線 目黒駅 徒歩9分
東急目黒線 不動前駅 徒歩10分
住   所
東京都目黒区 下目黒2丁目
物件種別
マンションタイプ
完成/築年数
2004年02月/ 築22年
入居時期
期日指定: 2026年04月 中旬
構   造
鉄筋鉄骨: 地上18階  建て  6階部分
物件番号
672193

間取り図

間取り図
詳細情報
  • オートロック
  • バス・トイレ別
  • 室内洗濯機置き場
  • 独立洗面台
  • フローリング
  • 楽器相談可
  • 事務所不可
  • IHコンロ
  • システムキッチン
  • 浴室乾燥機
  • エアコン
  • CATV
  • CSアンテナ
  • BSアンテナ
  • 高速インターネット
  • エレベータ
  • 宅配ボックス
  • バイク置き場
  • バルコニー
  • 2階以上
取り扱い店
学芸大学店
取引形態
仲介
間取り詳細
LDK0.00帖         
備   考

普通借家契約 24ヶ月間
【めやす賃料】286459円/ ■退去時AC・浴室鏡清掃費、便座裏ゴム交換費請求有■駐輪場1台まで(

会員限定の未公開物件を多数公開中!

条件の近い物件