目黒区原町2丁目 【賃貸居住】マンション - 東急沿線の賃貸・不動産ならバレッグス
お電話のお問い合わせ
お電話のお問い合わせ
会員登録済みのお客様
SYFORME西小山 2階
Room Detail
外観(外観)
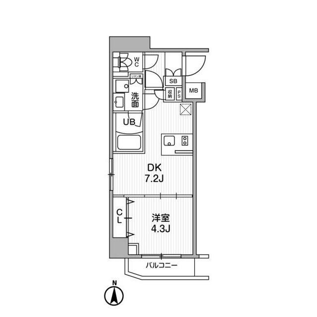
間取り図(間取)
(内装)
(キッチン)
(居間)
(風呂)
(内装)
(その他建物画像)
エントランス
西小山駅(818m)(周辺)
外観(外観)
間取り図(間取)
(内装)
(キッチン)
(居間)
(風呂)
(内装)
(その他建物画像)
エントランス
西小山駅(818m)(周辺)
間取り図
物件基本情報2026年2月28日更新
家 賃 15.5万円 間取り 1DK
管理費(共益費) 10,000円 面 積 29.76m²
敷 金 なし 礼 金 なし
保証金 なし 償 却 なし
周辺の交通
東急目黒線 西小山駅 徒歩10分
東急目黒線 洗足駅 徒歩12分
住   所
東京都目黒区 原町2丁目
物件種別
マンションタイプ
完成/築年数
2022年07月/ 築3年
入居時期
相談
構   造
鉄筋コン: 地上6階  建て  2階部分
物件番号
672094
物件基本情報2026年2月28日更新
家 賃 15.5万円 間取り 1DK
管理費(共益費) 10,000円 面 積 29.76m²
敷 金 なし 礼 金 なし
保証金 なし 償 却 なし
周辺の交通
東急目黒線 西小山駅 徒歩10分
東急目黒線 洗足駅 徒歩12分
住   所
東京都目黒区 原町2丁目
物件種別
マンションタイプ
完成/築年数
2022年07月/ 築3年
入居時期
相談
構   造
鉄筋コン: 地上6階  建て  2階部分
物件番号
672094

間取り図

間取り図
詳細情報
  • オートロック
  • バス・トイレ別
  • 室内洗濯機置き場
  • 独立洗面台
  • フローリング
  • ガスコンロ
  • 二口コンロ
  • システムキッチン
  • 浴室乾燥機
  • 温水洗浄便座
  • CSアンテナ
  • BSアンテナ
  • 光ファイバー
  • インターネット利用料無料
  • TVドアホン
  • 防犯カメラ
  • 都市ガス
  • 宅配ボックス
  • バルコニー
  • 2階以上
取り扱い店
祐天寺店
取引形態
仲介
間取り詳細
         
備   考

普通借家契約 2年間

会員限定の未公開物件を多数公開中!

条件の近い物件