目黒区平町2丁目 【賃貸居住】マンション - 東急沿線の賃貸・不動産ならバレッグス
お電話のお問い合わせ
お電話のお問い合わせ
会員登録済みのお客様
クレイシア都立大学クラッセ 2階
new
Room Detail
(外観)
(間取)
(玄関)
(キッチン)
(居間)
(風呂)
(内装)
(その他建物画像)
都立大学駅(904m)(周辺)
(外観)
(間取)
(玄関)
(キッチン)
(居間)
(風呂)
(内装)
(その他建物画像)
都立大学駅(904m)(周辺)
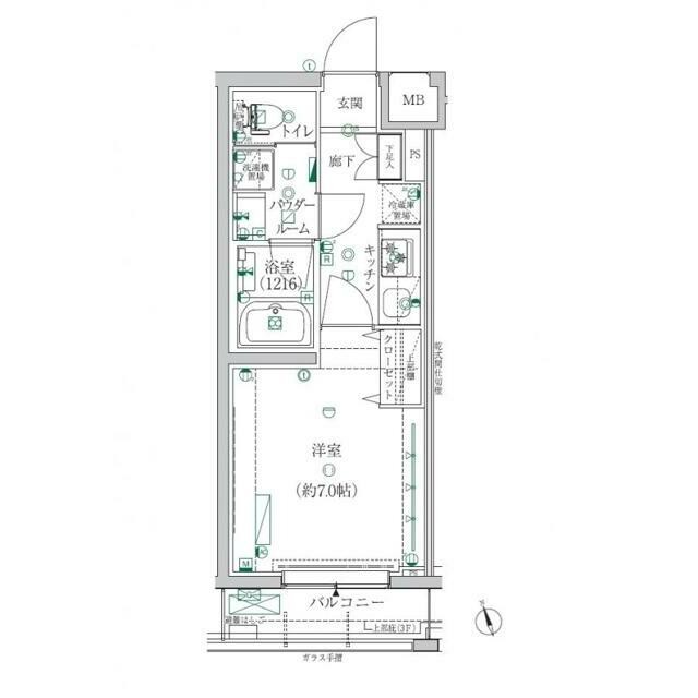
間取り図
物件基本情報2026年4月12日更新
家 賃 12.3万円 間取り 1K
管理費(共益費) 12,000円 面 積 25.49m²
敷 金 1ヶ月 礼 金 1ヶ月
保証金 なし 償 却 なし
周辺の交通
東急東横線 都立大学駅 徒歩9分
東急大井町線 緑が丘駅 徒歩16分
住   所
東京都目黒区 平町2丁目
物件種別
マンションタイプ
完成/築年数
2020年03月/ 築6年
入居時期
相談
構   造
鉄筋コン: 地上3階  地下1階 建て  2階部分
物件番号
679334
物件基本情報2026年4月12日更新
家 賃 12.3万円 間取り 1K
管理費(共益費) 12,000円 面 積 25.49m²
敷 金 1ヶ月 礼 金 1ヶ月
保証金 なし 償 却 なし
周辺の交通
東急東横線 都立大学駅 徒歩9分
東急大井町線 緑が丘駅 徒歩16分
住   所
東京都目黒区 平町2丁目
物件種別
マンションタイプ
完成/築年数
2020年03月/ 築6年
入居時期
相談
構   造
鉄筋コン: 地上3階  地下1階 建て  2階部分
物件番号
679334

間取り図

間取り図
詳細情報
  • オートロック
  • バス・トイレ別
  • 室内洗濯機置き場
  • 独立洗面台
  • フローリング
  • ガスコンロ
  • 三口コンロ
  • システムキッチン
  • 追い焚き
  • 浴室乾燥機
  • 温水洗浄便座
  • エアコン
  • インターネット利用料無料
  • 防犯カメラ
  • エレベータ
  • 宅配ボックス
  • バルコニー
  • 2階以上
取り扱い店
都立大学店
取引形態
仲介
間取り詳細
         
備   考

普通借家契約 2年間

会員限定の未公開物件を多数公開中!

条件の近い物件