目黒区柿の木坂2丁目 【賃貸居住】マンション - 東急沿線の賃貸・不動産ならバレッグス
お電話のお問い合わせ
お電話のお問い合わせ
会員登録済みのお客様
ヴェルト柿の木坂 4階
new
Room Detail
(外観)
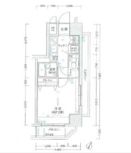
(間取)
※同仕様写真含む(居間)
※同仕様写真含む(キッチン)
※同仕様写真含む(風呂)
※同仕様写真含む(内装)
※同仕様写真含む(内装)
※同仕様写真含む
※同仕様写真含む(玄関)
※同仕様写真含む(内装)
※同仕様写真含む(内装)
※同仕様写真含む
※同仕様写真含む
(その他建物画像)
(その他建物画像)
(その他建物画像)
都立大学駅から(周辺)
【交番】都立大学駅から(周辺)
【目黒区立八雲小学校】都立大学駅から(周辺)
(外観)
(間取)
※同仕様写真含む(居間)
※同仕様写真含む(キッチン)
※同仕様写真含む(風呂)
※同仕様写真含む(内装)
※同仕様写真含む(内装)
※同仕様写真含む
※同仕様写真含む(玄関)
※同仕様写真含む(内装)
※同仕様写真含む(内装)
※同仕様写真含む
※同仕様写真含む
(その他建物画像)
(その他建物画像)
(その他建物画像)
都立大学駅から(周辺)
【交番】都立大学駅から(周辺)
【目黒区立八雲小学校】都立大学駅から(周辺)
間取り図
物件基本情報2026年1月23日更新
家 賃 9.1万円 間取り 1K
管理費(共益費) 10,000円 面 積 23.95m²
敷 金 なし 礼 金 1ヶ月
保証金 なし 償 却 なし
周辺の交通
東急東横線 都立大学駅 徒歩11分
東急東横線 学芸大学駅 徒歩12分
東急田園都市線 駒沢大学駅 徒歩23分
住   所
東京都目黒区 柿の木坂2丁目
物件種別
マンションタイプ
完成/築年数
2005年04月/ 築20年
入居時期
相談
構   造
鉄筋コン: 地上9階  建て  4階部分
物件番号
654768
物件基本情報2026年1月23日更新
家 賃 9.1万円 間取り 1K
管理費(共益費) 10,000円 面 積 23.95m²
敷 金 なし 礼 金 1ヶ月
保証金 なし 償 却 なし
周辺の交通
東急東横線 都立大学駅 徒歩11分
東急東横線 学芸大学駅 徒歩12分
東急田園都市線 駒沢大学駅 徒歩23分
住   所
東京都目黒区 柿の木坂2丁目
物件種別
マンションタイプ
完成/築年数
2005年04月/ 築20年
入居時期
相談
構   造
鉄筋コン: 地上9階  建て  4階部分
物件番号
654768

間取り図

間取り図
詳細情報
  • オートロック
  • バス・トイレ別
  • 室内洗濯機置き場
  • 独立洗面台
  • フローリング
  • ペット可能
  • 保証人不要
  • 角部屋
  • ガスコンロ
  • 二口コンロ
  • システムキッチン
  • 浴室乾燥機
  • 温水洗浄便座
  • エアコン
  • TVドアホン
  • 防犯カメラ
  • 都市ガス
  • エレベータ
  • 宅配ボックス
  • バルコニー
  • 2階以上
取り扱い店
祐天寺店
取引形態
仲介
間取り詳細
洋室7.20帖         
備   考

普通借家契約 2年間
詳細はお気軽にお問合せください。※画像は同仕様写真等を含む場合あり、その他掲載情報についても現況優先

会員限定の未公開物件を多数公開中!

条件の近い物件