

恵比寿駅 徒歩8分
610,000円
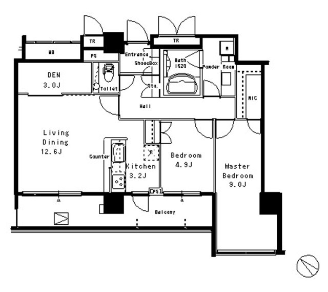
2LDK/78.56m²
| 家 賃 | 56.5万円 | 間取り | 2SLDK |
|---|---|---|---|
| 管理費(共益費) | 15,000円 | 面 積 | 77.64m² |
| 敷 金 | 1ヶ月 | 礼 金 | なし |
| 保証金 | なし | 償 却 | なし |
| 家 賃 | 56.5万円 | 間取り | 2SLDK |
|---|---|---|---|
| 管理費(共益費) | 15,000円 | 面 積 | 77.64m² |
| 敷 金 | 1ヶ月 | 礼 金 | なし |
| 保証金 | なし | 償 却 | なし |
普通借家契約 24ヶ月間
【めやす賃料】603542円/保証会社必須:法人未加入時+敷1/小型犬1匹迄飼育可+敷1/駐輪場1住
会員限定の未公開物件を多数公開中!
