目黒区自由が丘1丁目 【賃貸居住】マンション - 東急沿線の賃貸・不動産ならバレッグス
お電話のお問い合わせ
お電話のお問い合わせ
会員登録済みのお客様
アレーロ自由が丘 B1階
Room Detail
(外観)
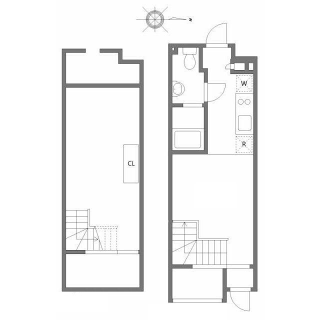
(間取)
(キッチン)
(居間)
(風呂)
(内装)
(内装)
(内装)
(その他建物画像)
自由が丘駅(469m)(周辺)
(外観)
(間取)
(キッチン)
(居間)
(風呂)
(内装)
(内装)
(内装)
(その他建物画像)
自由が丘駅(469m)(周辺)
間取り図
物件基本情報2026年5月17日更新
家 賃 16.4万円 間取り 1LDK
管理費(共益費) 15,000円 面 積 42.85m²
敷 金 なし 礼 金 なし
保証金 なし 償 却 なし
周辺の交通
東急東横線 自由が丘駅 徒歩4分
東急目黒線 奥沢駅 徒歩10分
住   所
東京都目黒区 自由が丘1丁目
物件種別
マンションタイプ
完成/築年数
2016年02月/ 築10年
入居時期
相談
構   造
鉄筋コン: 地上4階  地下1階 建て  B1階部分
物件番号
676413
物件基本情報2026年5月17日更新
家 賃 16.4万円 間取り 1LDK
管理費(共益費) 15,000円 面 積 42.85m²
敷 金 なし 礼 金 なし
保証金 なし 償 却 なし
周辺の交通
東急東横線 自由が丘駅 徒歩4分
東急目黒線 奥沢駅 徒歩10分
住   所
東京都目黒区 自由が丘1丁目
物件種別
マンションタイプ
完成/築年数
2016年02月/ 築10年
入居時期
相談
構   造
鉄筋コン: 地上4階  地下1階 建て  B1階部分
物件番号
676413

間取り図

間取り図
詳細情報
  • オートロック
  • バス・トイレ別
  • 室内洗濯機置き場
  • 独立洗面台
  • フローリング
  • ガスコンロ
  • 二口コンロ
  • システムキッチン
  • 追い焚き
  • 浴室乾燥機
  • 温水洗浄便座
  • エアコン
  • インターネット利用料無料
  • TVドアホン
  • 防犯カメラ
  • 都市ガス
  • 宅配ボックス
  • バルコニー
  • デザイナーズ
取り扱い店
自由が丘店
取引形態
仲介
間取り詳細
         
備   考

普通借家契約 2年間

会員限定の未公開物件を多数公開中!

条件の近い物件