世田谷区下馬5丁目 【賃貸居住】マンション - 東急沿線の賃貸・不動産ならバレッグス
お電話のお問い合わせ
お電話のお問い合わせ
会員登録済みのお客様
ソラシアレジデンス学芸大学II 3階
new
Room Detail
(外観)
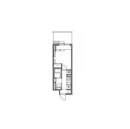
(間取)
(内装)
(キッチン)
(居間)
(風呂)
(玄関)
(内装)
(内装)
(その他建物画像)
学芸大学駅(970m)(周辺)
(外観)
(間取)
(内装)
(キッチン)
(居間)
(風呂)
(玄関)
(内装)
(内装)
(その他建物画像)
学芸大学駅(970m)(周辺)
間取り図
物件基本情報2026年4月17日更新
家 賃 12.1万円 間取り 1K
管理費(共益費) 12,000円 面 積 20.21m²
敷 金 なし 礼 金 なし
保証金 なし 償 却 なし
周辺の交通
東急東横線 学芸大学駅 徒歩10分
東急東横線 祐天寺駅 徒歩10分
住   所
東京都世田谷区 下馬5丁目
物件種別
マンションタイプ
完成/築年数
2025年08月/ 新築
入居時期
相談
構   造
鉄筋コン: 地上3階  地下1階 建て  3階部分
物件番号
680208
物件基本情報2026年4月17日更新
家 賃 12.1万円 間取り 1K
管理費(共益費) 12,000円 面 積 20.21m²
敷 金 なし 礼 金 なし
保証金 なし 償 却 なし
周辺の交通
東急東横線 学芸大学駅 徒歩10分
東急東横線 祐天寺駅 徒歩10分
住   所
東京都世田谷区 下馬5丁目
物件種別
マンションタイプ
完成/築年数
2025年08月/ 新築
入居時期
相談
構   造
鉄筋コン: 地上3階  地下1階 建て  3階部分
物件番号
680208

間取り図

間取り図
詳細情報
  • オートロック
  • バス・トイレ別
  • 室内洗濯機置き場
  • 独立洗面台
  • フローリング
  • ペット可能
  • システムキッチン
  • 追い焚き
  • 浴室乾燥機
  • 温水洗浄便座
  • エアコン
  • CATV
  • CSアンテナ
  • BSアンテナ
  • インターネット利用料無料
  • TVドアホン
  • 防犯カメラ
  • 都市ガス
  • 宅配ボックス
  • 2階以上
取り扱い店
学芸大学店
取引形態
仲介
間取り詳細
         
備   考

普通借家契約 2年間

会員限定の未公開物件を多数公開中!

条件の近い物件